Vendita Appartamento

Appartamento

Via Mario Greco, 23, Martina Franca, Taranto

130.000 €
100
mq
4
Locali
2
Camere
1
Bagni

Recensisci questo Immobile

Devi essere registrato per lasciare una recensione.

Accedi

Nessuna recensione ancora. Sii il primo!

Descrizione

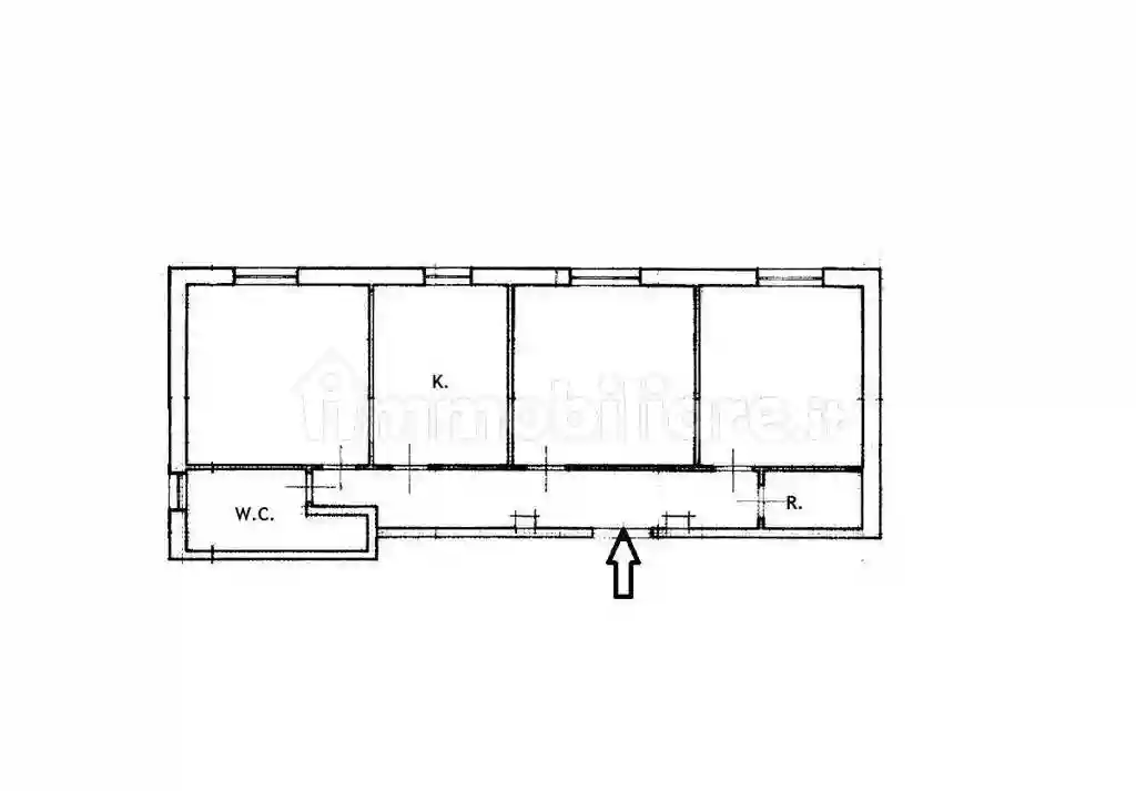
Rif. B32 #myprojectcasa propone in vendita appartamento al quarto piano con ascensore. L'appartamento è composto da ingresso in corridoio, due ampie camere da letto, cucina abitabile, salotto, comodo bagno con vasca e ampio ripostiglio. L'immobile, molto luminoso, è provvisto di doppi infissi, condizionamento, termo autonomo. Balconi con vista Valle d'Itria. Per ulteriori informazioni o per prenotare una visita potete contattarci allo +39 0804859887 o al +393934304931 - info@myprojectcasa.it - www.myprojectcasa.it Classe Energetica: G EPI: 175,00 kwh/m2 anno

Caratteristiche

Ascensore Si
Stato Buono / Abitabile
Riscaldamento Autonomo

Posizione

Referente

MY PROJECT CASA Martina Franca Ostuni Cisternino Fasano Locorotondo Monopoli Carovigno

Storico

Pubblicato 14 Jan 2026
Aggiornato 25 Feb 2026
Sul mercato 44 giorni
ID Annuncio 70427298

Recensioni

Vedi tutte
A

Antonella Giannini

4.7

Stavo cercando la prima casa a Martina Franca e volevo qualcosa di davvero speciale, e finalmente l’ho trovata grazie a un’agenzia che si è dimostrata competente e molto disponibile. Mi sono sentita s...