Indietro
Vendita Attico - Mansarda

Attico - Mansarda

Via Giovanni Pascoli, 41, Noicattaro, Bari

Prezzo
Buon Prezzo: 15% sotto la media
64
mq
3
Locali
2
Camere
1
Bagni

Recensisci questo Immobile

Devi essere registrato per lasciare una recensione.

Accedi

Nessuna recensione ancora. Sii il primo!

Descrizione

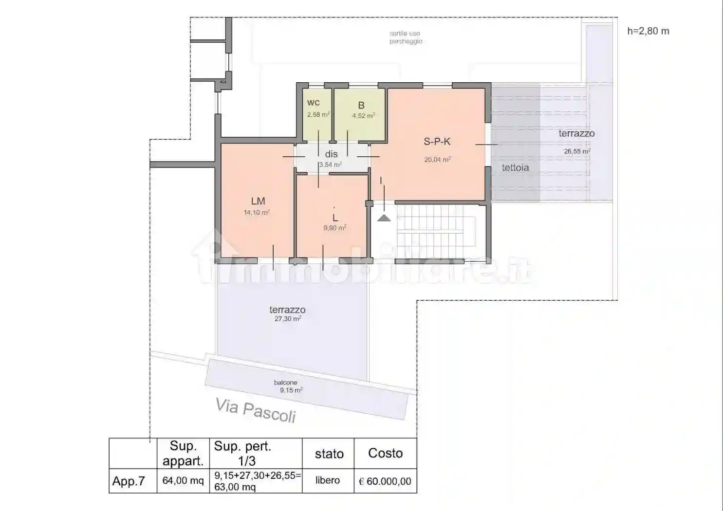
Inserito in un piccolo condominio, vendesi appartamento al 2° piano, considerato come un attico, in quanto anche se la superficie interna è di 64 mq, l'appartamento dispone di una superficie di 63 mq tra terrazzo e balcone di pertinenza esclusiva che può essere allestita con tettoie, pergolati e giardini (è possibile avere una superficie di terrazzo complessiva di 74,45 mq con un prezzo complessivo di 65.000 euro invece che 60.000 euro); l'appartamento è composto da una zona giorno con ambiente unico di soggiorno, pranzo e cucina, due camere da letto e un bagno. Quasi tutto il perimetro dell'appartamento è libero da pareti condivise, e questo permette di modificare le finestre esistenti o di aprirne di nuove più o meno grandi per poter interagire al meglio con i terrazzi esterni di pertinenza esclusiva. La superficie a terrazzo è suddivisa in due porzioni, una che si affaccia sul prospetto di via Pascoli e uno che si affaccia sul cortile interno e su una parete di confine laterale del condominio. sono presenti finestre, senza terrazzo o balcone, che si affacciano direttamente sul cortile interno. La delimitazione del terrazzo di pertinenza esclusivo è data da pannelli frangisole, alti 2,00 m, che garantiscono una discreta privacy.
La scala è comune solo ad altri 2 condomini con appartamenti al primo piano.
L'appartamento si vende nello stato in cui si trova, ovvero essendo a rustico ne richiede il completamento delle finiture e degli impianti. Dovendo fare lavori edili, si propongono possibili soluzioni progettuali che permetterebbero di valorizzare le potenzialità dello spazio disponibile. In fase di contrattazione è a disposizione gratuitamente un architetto per valutare soluzioni progettuali conformanti alle specifiche esigenze e di stimare i costi dei lavori relativi.
C'è la possibilità di comprare separatamente anche un locale box auto.
Il prezzo è trattabile.
L'edificio è inserito in una zona tranquilla residenziale (c'è movimento solo il mercoledì mattina per il mercato e negli orari di entrata/uscita degli studenti dalla vicina scuola media), rimanendo comunque in una zona centrale che permette facilmente di raggiungere sia i luoghi di aggregazione (piazza, villa comunale, parco) che le infrastrutture (municipio, posta, scuole, chiese, ecc. ).
Si consiglia di chiedere un sopralluogo in quanto sarà presente un architetto per maggiori chiarimenti su potenzialità dell'appartamento.

Caratteristiche

Piano 2
Ascensore No
Stato Da ristrutturare
Riscaldamento Autonomo

Servizi e accessori

Esposizione sud, est, ovest

Posizione

Agenzia Immobiliare

Storico

Pubblicato 14 Jan 2026
Aggiornato 28 Feb 2026
Sul mercato 44 giorni
ID Annuncio 80012441