Vendita Attico - Mansarda

Attico - Mansarda

Via Claudia, Savignano sul Panaro, Modena

Prezzo
114
mq
4
Locali
1
Bagni

Recensisci questo Immobile

Devi essere registrato per lasciare una recensione.

Accedi

Nessuna recensione ancora. Sii il primo!

Descrizione


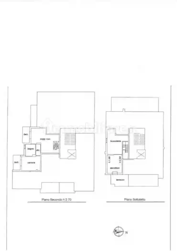
In palazzina pietravista attico nuovo su due livelli con vista panoramica, L'immobile e' composto al secondo piano di ampia sala con angolo cottura e balcone coperto, disimpegno notte, bagno, camera matrimoniale con balcone coperto. Dal secondo piano con bella e raffinata scala in legno si accede alla mansarda composta da un due locali, che possono essere adibiti tutti a camere o a ad altro uso con realizzazione angolo bagno-lavanderia, completa la proprieta' un bel terrazzo panoramico di circa 11 mq. L'abitazione dispone di riscaldamento a pavimento, porta blindata, videocitofono, predisposizione aria condizionata, tapparelle elettriche, ed eleganti finiture in special modo nel bagno principale. Con possibilita' di arredo di qualita' su misura. Richiesta 195.000 trattabili Garage doppio a parte. Referente Palmieri Franca 335/6072162 Si precisa che le imposte di compravendita di questo immobile sono pari all'usato ed inoltre si puo' recuperare nella dichiarazione dei redditi il costo di costruzione dell'autorimessa in 10 anni.

Caratteristiche

Piano 2
Ascensore Si
Stato Nuovo / In costruzione
Riscaldamento Autonomo, alimentato a gas

Posizione

Referente

Studio Immobiliare G.Burzi Group di Palmieri Franca

Storico

Pubblicato 12 Jan 2026
Aggiornato 15 Apr 2026
Sul mercato 94 giorni
ID Annuncio 92667380

Recensioni

Vedi tutte
R

Rocco Frigerio

5.0

Ricordo ancora il momento in cui ho deciso di vendere la casa dopo il divorzio: l'agenzia ha dimostrato grande professionalitĆ  e attenzione alle mie esigenze. Ho trovato subito una vasta scelta di imm...

C

Claudio Brambilla

4.7

Stavo cercando un appartamento per i miei figli universitari e ho trovato proprio quello che faceva al caso nostro. L'agenzia mi ha seguito con grande disponibilitĆ  e pazienza, ascoltando ogni mia ric...

M

Massimo Grande

4.7

Ho venduto la mia casa a Savignano sul Panaro e sono rimasto molto soddisfatto del risultato. L'agenzia ha mostrato grande professionalitĆ , sempre trasparente e puntuale negli appuntamenti, il che ha...

A

Arturo Carboni

4.3

Durante il processo mi sono sentito subito a mio agio, grazie alla loro disponibilitĆ  e flessibilitĆ  negli orari che mi hanno permesso di gestire tutto senza stress. Sono stato seguito passo dopo pass...