Indietro
Vendita Casa indipendente

Casa indipendente

Via Pioveghetto, Padova, Padova

Prezzo
Ottimo Affare: 49% sotto la media
183
mq
4
Locali
3
Camere
3
Bagni

Recensisci questo Immobile

Devi essere registrato per lasciare una recensione.

Accedi

Nessuna recensione ancora. Sii il primo!

Descrizione

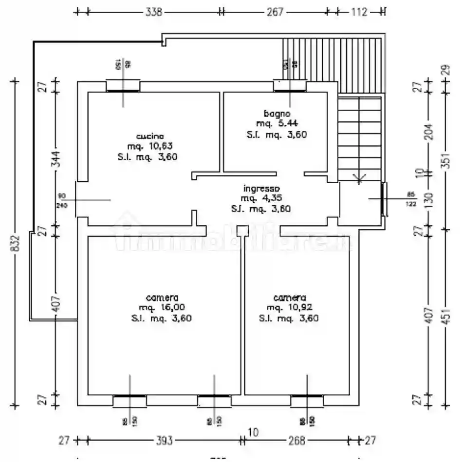
Brusegana, casa singola da ristrutturare completamente. Il fabbricato da cielo a terra è distribuito su due piani, piano terra e piano primo, ed è composto da più vani ed accessori, fra cui il garage pertinenziale su corpo distaccato. La composizione del fabbricato attuale è indicata dalle prime due piante delle immagini inserite e può essere ristrutturato o demolito e ricostruito secondo il progetto indicato nelle successive due piante delle immagini inserite. Attualmente l'immobile è composto da due unità, una al piano terra e una al piano primo. La posizione dell'immobile è in zona tranquilla, ma comoda ai servizi. Le immagini, oltre alle piante dello stato di fatto e a quelle del possibile immobile ricostruito, mostrano la situazione attuale dell'esterno dell'edificio e di quanto sarà realizzato.

Caratteristiche

Ascensore No
Stato Da ristrutturare
Riscaldamento Autonomo, a radiatori, alimentato a metano

Servizi e accessori

Esposizione doppia Impianto tv singolo Infissi esterni in vetro / legno

Posizione

Zona: Chiesanuova (Chiesanuova, Montà, Sant'Ignazio)

Referente

Il Domino Real Estate

Storico

Pubblicato 14 Jan 2026
Aggiornato 24 May 2026
Sul mercato 131 giorni
ID Annuncio 94618538

Recensioni

Vedi tutte
E

Emanuele Delfino

4.7

Ho trovato l’agenzia fantastica: sono rimasto impressionato dalla rapidità con cui sono stato seguito e aiutato a trovare il mio investimento immobiliare a Padova. La disponibilità e la professionalit...

O

Oreste Messina

4.7

Durante il processo mi sono sentito sempre seguito e supportato, grazie all’accompagnamento nelle visite e alla disponibilità a rispondere tempestivamente a ogni mia domanda. Ho trovato un’agenzia aff...

O

Olga Passeri

4.7

Ricordo ancora quel momento speciale quando ho trovata la casa dei miei sogni, grazie alla disponibilità e alla professionalità del team. Mi sono sentita seguita passo dopo passo con tanta attenzione...

U

Umberto Lorenzi

4.3

Grazie di cuore per l'assistenza, sono stato davvero felice del servizio ricevuto. Ho trovato un'ampia scelta di immobili e l'intera gestione burocratica è stata rapida ed efficiente, il che ha reso t...