Indietro
Vendita Villetta a schiera

Villetta a schiera

Aviano, Pordenone

Prezzo su richiesta
150
mq
4
Locali
2
Camere
1
Bagni

Recensisci questo Immobile

Devi essere registrato per lasciare una recensione.

Accedi

Nessuna recensione ancora. Sii il primo!

Descrizione

A Piancavallo (PN), in zona Collalto, proponiamo in acquisto villette di nuova costruzione di diverse tipologie, realizzate con altissimi standard energetici ed estetici.
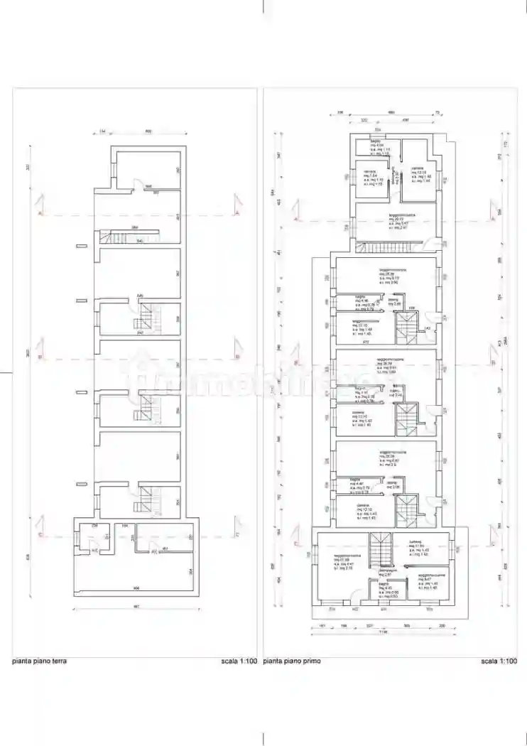
L'immobile si svilupperà su tre livelli. Al piano terra si trova il garage e un locale lavanderia. Al primo piano l'abitazione, composta di ampio soggiorno con angolo cottura, bagno finestrato e una o due camere da letto, a seconda della tipologia di villetta scelta. Al secondo e ultimo piano si trova una soffitta accessibile, perfetta da usare come comodo deposito.
Il progetto prevede il massimo indice di prestazione energetica, con predisposizione per l'installazione del fotovoltaico e di caminetto nella zona giorno, con riscaldamento autonomo con caldaia a pellet controllabile da remoto, infissi in legno o pvc con tripli vetri.
Prezzo su richiesta.
AGENZIA IMMOBILIARE CIENNE ODERZO (TREVISO) TEL 0422.815891 altre nostre proposte su: www.immobiliarecienne.it
CON NOI LA VENDITA DEL VOSTRO IMMOBILE SI PERFEZIONERA' IN TEMPI BREVISSIMI, NON ASPETTATE A CONTATTARCI AL N. 0422.815891. AFFRETTATEVI!

Caratteristiche

Ascensore No
Stato Nuovo / In costruzione
Riscaldamento Autonomo, alimentato a pellet

Servizi e accessori

Caminetto Infissi esterni in triplo vetro / legno Mansarda

Posizione

Referente

Agenzia Immobiliare CIENNE snc

Storico

Pubblicato 12 Jan 2026
Aggiornato 24 Feb 2026
Sul mercato 43 giorni
ID Annuncio 95326976

Recensioni

Vedi tutte
V

Valentina Frigerio

5.0

Quello che mi ha colpito di più è stata l’attenzione ai dettagli e la professionalità durante tutto il processo di acquisto. Sono stata seguita passo passo, con grande disponibilità e competenza, e ho...

S

Sofia Costanzo

4.7

Ho trovato l’appartamento perfetto grazie a questa agenzia, mi sono sentita seguita passo dopo passo. Sono stata molto soddisfatta dell’assistenza post-vendita, che ha curato ogni dettaglio e reso il...

N

Nicoletta Bernardi

4.7

L’attenzione ai dettagli e la chiarezza con cui mi hanno seguita sono stati ciò che mi ha colpito di più. Ho trovato un team trasparente e molto disponibile, che ha ascoltato le mie esigenze con pazie...