Indietro
Vendita Casa indipendente

Casa indipendente

Borgata Novi, Montà, Cuneo

Prezzo
Ottimo Affare: 62% sotto la media
277
mq
4
Locali
2
Camere
2
Bagni

Recensisci questo Immobile

Devi essere registrato per lasciare una recensione.

Accedi

Nessuna recensione ancora. Sii il primo!

Descrizione

GRUPPO ERRE ESSE IMMOBILIARE Propone all'asta, abitazione a tre piani fuori terra e un piano interrato con terreno pertinenzale, così composta :
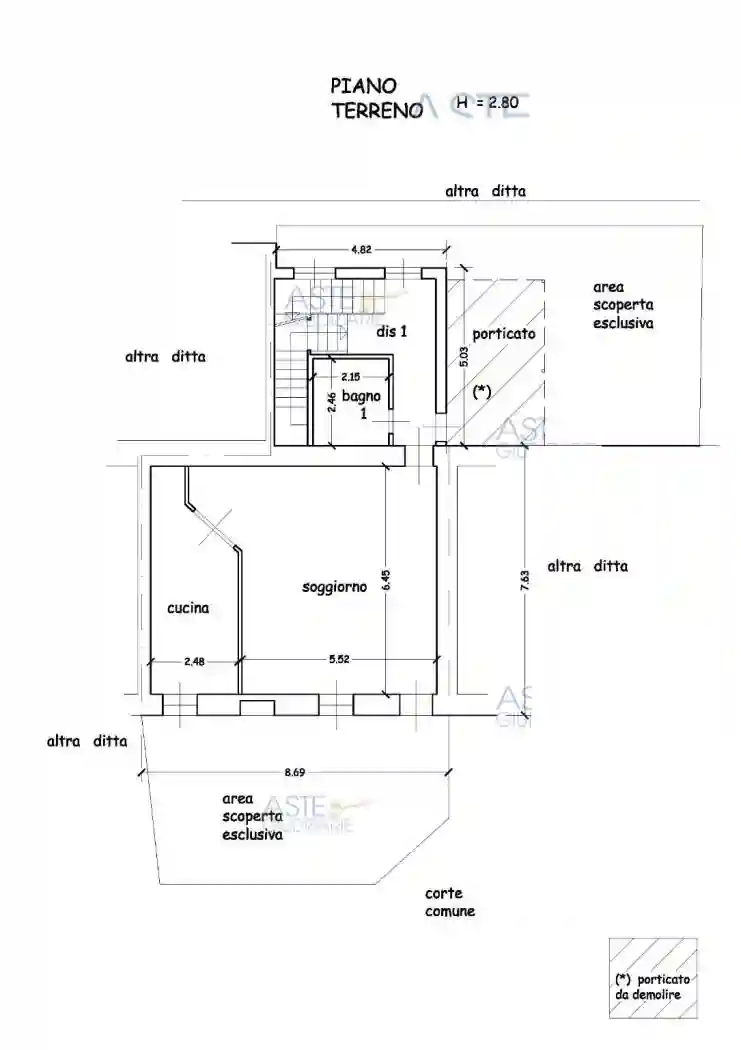
piano terra cucina, soggiorno, bagno, disimpegno e vano scala
piano primo due camere di cui una con cabina armadio, bagno, disimpegno, vano scala e balcone
piano secondo locale sgombero e disimpegno
piano interrato cantina
Trattasi di immobile venduto tramite asta giudiziaria.
Documentazione e foto presso il nostro studio.
Con la nuova modalità di partecipazione alle aste TELEMATICHE ci occupiamo di affiancare il cliente interessato all'acquisto con un servizio completo ed efficiente che inquadra ogni aspetto: dalla presentazione dell'offerta all'acquisto finale, fino alla consegna delle chiavi.
La figura del presentatore delle aste telematiche è fondamentale ed indispensabile per espletare tutte le funzioni inerenti la preparazione e l'inoltro in maniera corretta e valida dell'offerta, oltre ad assistere il cliente nella gestione delle operazioni da compiere durante lo svolgimento dell'asta.

L'annuncio è finalizzato alla vendita del servizio di consulenza ed assistenza, gratuita in caso di mancata aggiudicazione dell'asta immobiliare.
Trattasi di vendita pubblica alla quale è possibile partecipare personalmente o tramite il nostro avvocato.
Per ricevere informazioni e per prenotare la visita dell'immobile : tel. 0172/752034 gruppoerreesseimmobiliare@gmail.com

Caratteristiche

Piano T
Ascensore No
Stato Buono / Abitabile
Riscaldamento Autonomo, a pavimento, alimentato a metano

Servizi e accessori

Cucina Esposizione doppia Impianto tv singolo Infissi esterni in doppio vetro / legno Mansarda Porta blindata

Posizione

Referente

Gruppo Erre Esse Immobiliare

Storico

Pubblicato 03 Mar 2026
Disattivato 20 May 2026
Sul mercato 79 giorni
ID Annuncio 96393096

Recensioni

Vedi tutte
M

Marcello Mancuso

5.0

Un'agenzia davvero fantastica! Sono stato molto soddisfatto del servizio, hanno trovato per me un appartamento perfetto per i miei figli universitari. Sono stato colpito dalla loro precisione nella ge...

O

Oscar Laurenti

4.7

Se cercate un'agenzia seria, consiglio di affidarsi a loro, hanno un'ampia scelta di immobili e gestiscono tutto in modo super efficiente, senza stress. Io mi sono trovato molto bene, sono stato segui...

V

Valerio Mastroianni

4.3

Ho trovato l’ufficio perfetto per la mia attività grazie a questa agenzia, che si è dimostrata immediata e molto disponibile. La rapidità e la tempestività nelle risposte mi hanno fatto sentire davver...