Vendita Attico - Mansarda

Attico - Mansarda

Via Diego Eusebi, Poggio Mirteto, Rieti

Prezzo
Buon Prezzo: 19% sotto la media
75
mq
4
Locali
2
Camere
1
Bagni

Recensisci questo Immobile

Devi essere registrato per lasciare una recensione.

Accedi

Nessuna recensione ancora. Sii il primo!

Descrizione

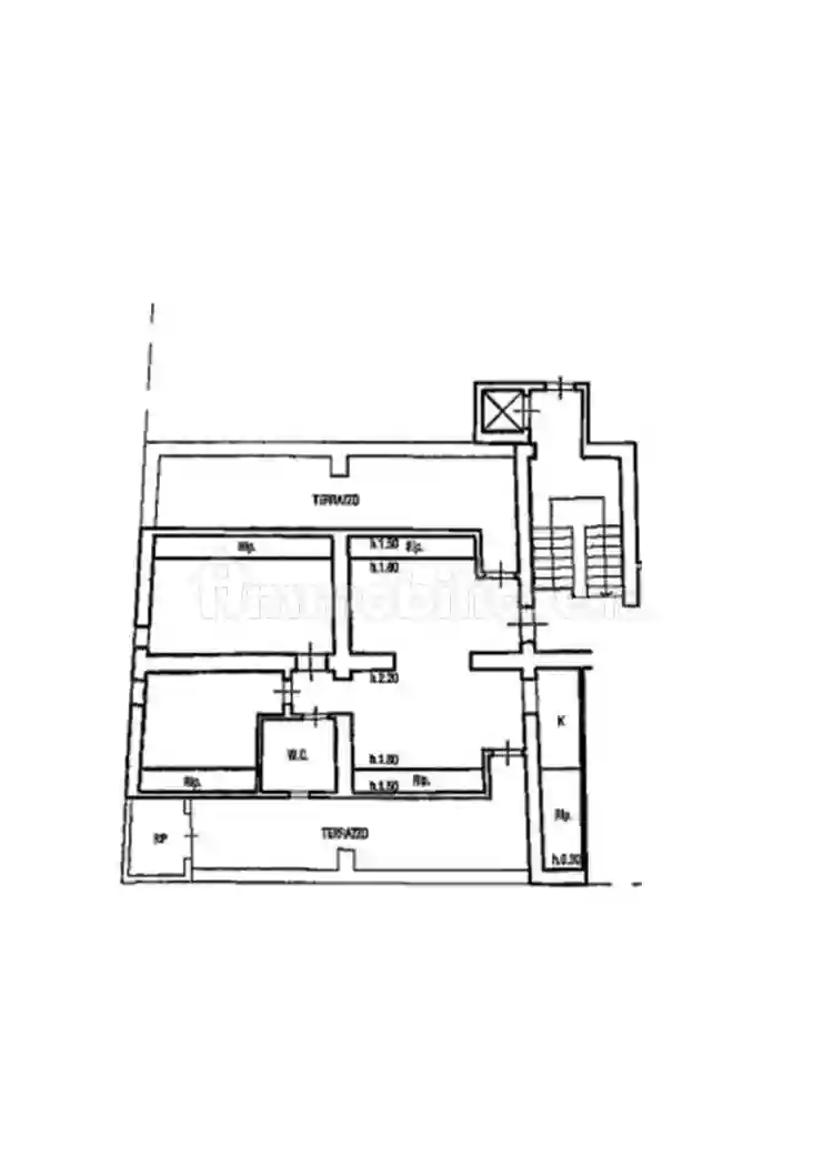
Ottimamente ubicato in posizione centrale, in prossimità della piazza principale del paese proponiamo in vendita un attico con ampi terrazzi! L'abitazione disposta su di un unico livello è composta da: soggiorno con caminetto, cucinotto, due camere, bagno e due terrazzi di cui uno con affaccio sul Soratte! Il palazzo ha un doppio ingresso, uno da via Eusebi e l'altro da Piazza della Vetreria. L'ascensore conduce fino all'ultimo pianerottolo e cinque scalini conducono poi all'accesso dell'abitazione. Soluzione ideale per chi amia vivere in centro senza rinunciare allo spazio esterno!

Caratteristiche

Piano 3
Ascensore Si
Stato Buono / Abitabile
Riscaldamento Autonomo, a radiatori, alimentato a metano

Servizi e accessori

Caminetto Esposizione doppia

Referente

Esperienza Immobiliare

Storico

Pubblicato 12 Jan 2026
Disattivato 28 Feb 2026
Sul mercato 133 giorni
ID Annuncio 96478196

Recensioni

Vedi tutte
M

Michela Zanetti

4.7

Stavo cercando un'agenzia che potesse seguirmi con flessibilità e rapidità durante la vendita di un locale commerciale a Poggio Mirteto. Sono stata molto soddisfatta del supporto che ho ricevuto: mi h...

R

Renata Urso

4.3

Ho trovato l’agenzia molto professionale e attenta alle mie esigenze. Mi hanno seguita passo passo con grande pazienza e disponibilità, anche fuori dagli orari standard, rendendo tutto più semplice. S...