Vendita Progetto

Progetto

Strada Comunale di Bertolla, 140, Torino, Torino

180.000 €
65
mq
2-5
Locali

Recensisci questo Immobile

Devi essere registrato per lasciare una recensione.

Accedi

Nessuna recensione ancora. Sii il primo!

Descrizione

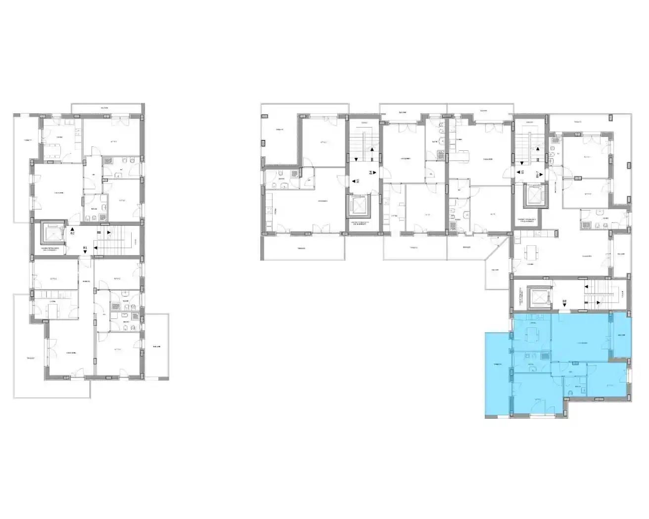
Complesso residenziale immerso nel verde di un realizzando parco di 40.000 mq, con vista su Superga, con ampi spazi di parcheggio e vie pedonali.
Il complesso di 25 alloggi sarà a quattro piani oltre al piano terreno a box e cantine, di classe energetica A, dotato di tutti i principali accorgimenti per il contenimento energetico; pannelli fotovoltaici per la produzione di energia elettrica condominiale, riscaldamento a pavimento con pannelli radianti e con raffrescamento estivo mediante pompa di calore e pannelli solari per produzione di acqua calda sanitaria con accumulo, il tutto contabilizzato a consumo per ogni utenza. Serramenti a doppio isolamento con vetrocamera e anta ribalta, alto grado di isolamento termico e acustico, predisposizione per zanzariere e tapparelle in alluminio elettrificate. Ascensori Evolux Ceam a basso consumo; copertura con tetto piano non praticabile isolato e coibentato.
Le tipologie prevedono mono, bi e tri locali, con balconi vivibili, giardini pensili al primo piano e ampie terrazze all'ultimo, portoncino blindato, videocitofono, tv satellitare.
Possibilità di modifiche e scelta pavimenti, rivestimenti, porte interne e sanitari.
Per informazioni e vendite:
+39 338 4020 243
+39 342 3746 174
+39 011 819 3361

Caratteristiche

Stato Nuovo / In costruzione

Posizione

Zona: Bertolla (Barriera di Lanzo, Falchera, Barca, Bertolla)

Referente

Cogeprim Srl

Storico

Pubblicato 14 Jan 2026
Aggiornato 25 Feb 2026
Sul mercato 43 giorni
ID Annuncio 97474198

Recensioni

Vedi tutte
B

Beatrice Valentini

5.0

Ricordo ancora quel momento in cui ho trovato il bilocale perfetto grazie alla loro assistenza. Mi sono sentita subito seguita e supportata, con una conoscenza davvero approfondita del mercato locale....

B

Bianca Mancuso

4.7

Rispetto ad altre esperienze passate, questa volta ho trovato un'agenzia molto più competente e disponibile. Mi sono sentita seguita passo dopo passo, con grande attenzione alle mie esigenze, il che h...

B

Barbara Pedroni

4.3

Ricordo ancora il momento in cui ho trovato il magazzino perfetto per la mia azienda, grazie alla pazienza e alla precisione con cui mi hanno seguita nella progettazione della documentazione. Sono sta...

B

Bruno Ametrano

4.0

Le mie esperienze con altre agenzie erano state un po' complicate, ma questa volta è stata tutta un'altra storia. Hanno avuto pazienza con le mie mille domande e conoscono bene le normative, il che mi...

S

Sonia Giannini

4.0

La professionalità e la trasparenza dimostrate durante la ricerca dell’ufficio mi hanno davvero colpita. Mi sono sentita seguita passo dopo passo, con attenzione e competenza in ogni fase della tratta...