Vendita Progetto

Progetto

Via Fornace, 7, Treviglio, Bergamo

Prezzo
Ottimo Affare: 31% sotto la media
54
mq
2-3
Locali

Recensisci questo Immobile

Devi essere registrato per lasciare una recensione.

Accedi

Nessuna recensione ancora. Sii il primo!

Descrizione

PROMOZIONE: FINO AL 30 NOVEMBRE IVA NOTAIO E CATASTO LI PAGHIAMO NOI
Nuovo Palazzo residenziale Classe A in costruzione a Treviglio in via Bergamo.
Contattaci al numero 335-6740949 - NO MEDIAZIONE
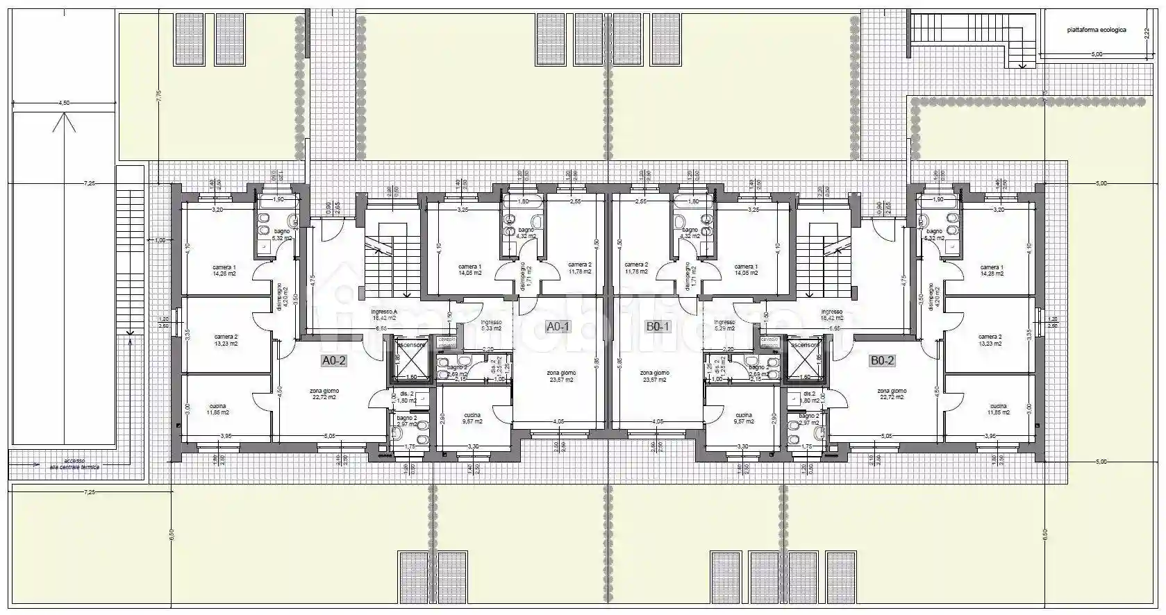
Varie soluzioni progettuali rispondono ad ogni tipo di esigenza: da appartamenti bilocali fino ai grandi quadrilocali al piano attico.
Il progetto prevede la realizzazione di 26 alloggi di varie metrature: al piano terra ed all'ultimo sono previsti 4 appartamenti di grandi dimensioni, i piani intermedi (primo, secondo e terzo) saranno composti ciascuno da 6 unità abitative di diverse dimensioni: 2 bilocali, 2 trilocali con zona giorno in open-space e 2 trilocali con cucina abitabile; il piano attico infine sarà costituito da 2 trilocali con cucina abitabile e 2 quadrilocali con cucina abitabile.
Il piano interrato accoglierà 28 box oltre ad alcune cantine e ai locali tecnici. Grande attenzione è stata posta nella distribuzione dei locali di ogni alloggio ottenendo una omogeneità complessiva dal punto di vista degli affacci: sfruttando la possibilità di avere l'orientamento del fabbricato lungo l'asse est-ovest, si sono progettate le zone giorno di tutti gli appartamenti lungo il fronte sud e gli ambienti della zona notte nella porzione a nord; questa soluzione permette la massima efficienza nello sfruttamento della luce naturale.
La profondità dei terrazzi prospicienti gli ambienti diurni delle unità abitative sono tali da garantire un buon controllo della luce naturale oltre che del calore dell'irraggiamento solare assicurando un ombreggiamento nel periodo estivo e nel contempo permettendo la penetrazione della luce all'interno dei locali nella fase invernale. L'impianto di riscaldamento sarà centralizzato e sarà costituito da una caldaia a condensazione combinata con una pompa di calore mentre la produzione dell'acqua calda sanitaria sarà supportata da pannelli solari termici posti sulla copertura; sempre sulla copertura verranno istallati i pennelli solari fotovoltaici. Nelle parti comuni dell'edificio saranno impiegate lampade a tecnologia LED a basso consumo. E' previsto il recupero delle acque piovane per reimpieghi ad uso non potabile.

Caratteristiche

Stato Nuovo / In costruzione

Posizione

Referente

Cooperativa Edilizia Acli Casa

Storico

Pubblicato 12 Jan 2026
Aggiornato 27 Feb 2026
Sul mercato 45 giorni
ID Annuncio 97492948

Recensioni

Vedi tutte
F

Fabio Carbone

4.7

Grazie mille per aver reso tutto così semplice e rapido! Ho trovato la casa perfetta in pochissimo tempo, grazie alla loro chiarezza e professionalità nelle spiegazioni. Mi sono sentito seguito passo...

F

Fabiana Palmieri

4.7

Ricordo ancora il momento in cui ho trovato la casa dei miei sogni, dopo anni di affitto e tante insicurezze. Sono stata seguita con grande professionalità e pazienza, e loro hanno gestito tutto in mo...

G

Giulia Mattei

4.3

Quello che mi ha colpito di più è stata la puntualità negli appuntamenti, sempre puntuale e preparata. La gestione dello stress durante la trattativa è stata impeccabile, mi ha aiutato a mantenere la...

S

Sara Veltri

4.0

Ho trovato in breve tempo un magazzino perfetto per le mie esigenze grazie a un servizio rapido e sempre disponibile. Sono stata seguita con professionalità e tempestività in ogni fase, il che ha reso...