Vendita Villa

Villa

Strada Comunale Belvedere Castello, Anagni, Frosinone

55.000 €
Ottimo Affare: 79% sotto la media
380
mq
5+
Locali
3
Camere
2
Bagni

Recensisci questo Immobile

Devi essere registrato per lasciare una recensione.

Accedi

Nessuna recensione ancora. Sii il primo!

Descrizione

POSIZIONE
A soli 2 chilometri dal centro di Anagni, all'incrocio tra Strada Comunale Castellone e Via Vignola.
In posizione ben esposta e facilmente raggiungibile, in quanto direttamente su strada comunale.

DESCRIZIONE
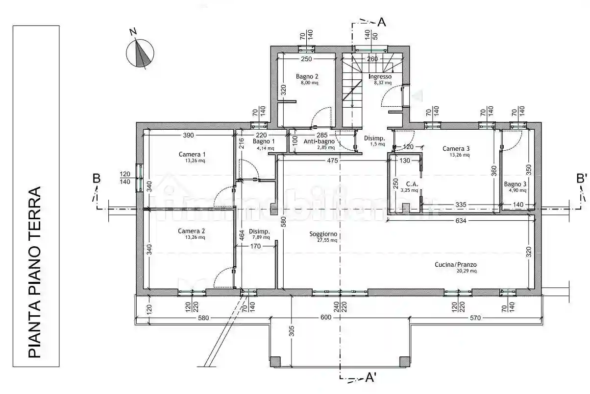
Cemento armato di soluzione indipendente/villa (da ultimare), di nuova generazione - anno di realizzazione 2015 - con regolare permesso di costruire, rilasciato per realizzare una soluzione abitativa di ampia metratura.
La proprietà, di c.a. 380 mq complessivi, oltre portico, viene venduta allo stato di fatto.
La soluzione, nel suo totale volume autorizzato, si sviluppa su tre livelli: piano seminterrato (garage e locali tecnici a servizio) di c.a. 170 mq, già realizzato; piano abitativo di c.a. 140 mq, oltre portico, da realizzare; soffitta lavatoio-stenditoio, di c.a. 70 mq.
L'attuale progetto prevede la suddivisione interna nel seguente modo: ampia cucina-soggiorno, studio, grande soggiorno con portico, tre grandi camere e due bagni.
Completa la proprietà terreno di c.a. 1.800 mq complessivi.

SINTESI
Terreno 1.500 mq c.a. + 300 mq c.a.
Piano seminterrato 170 mq c.a.
Parte abitativa 140 mq c.a. + portico di c.a. 30 mq
Piano sottotetto 70 mq c.a.

STATO E FINITURE
Proprietà con regolare permesso di costruire (oneri pagati), da ultimare.
Attualmente sono stati effettuati interventi di sbancamento, inoltre è stato realizzato il piano seminterrato in cemento armato, con muro di paratia e contenimento in cemento armato.
Per volumetria e stato, l'immobile risulta perfetto per essere personalizzato, al fine di soddisfare le proprie esigenze abitative.
Ubicato in area non isolata, servita da metano, elettricità e acqua diretta.

SPAZI ESTERNI
La proprietà è posta sul lato di monte del lotto, per consentire di ottimizzare al meglio il residuo giardino-corte (lato valle), a servizio dell'unità abitativa, che di fatto consente di avere uno spazio esterno di facile gestione.

UTILIZZO E POTENZIALITA'
Proprietà ideale per chi ha le potenzialità ed il desiderio di voler realizzare una soluzione abitativa indipendente, in base ai propri gusti e necessità.

* Le presenti informazioni non costituiscono elemento contrattuale, dovranno essere verificate in ogni caso.

Per tutte le soluzioni in vendita, potete visitare il nostro sito www.gruppoempireimmobiliare.it

Caratteristiche

Stato Nuovo / In costruzione

Servizi e accessori

Esposizione doppia Mansarda

Posizione

Referente

Gruppo Empire

Storico

Pubblicato 12 Jan 2026
Aggiornato 24 Feb 2026
Sul mercato 44 giorni
ID Annuncio 98351900

Recensioni

Vedi tutte
M

Marina Fusco

4.7

Ricordo ancora quando mi hanno aiutata a mettere in vendita il locale commerciale ad Anagni, è stato un bel momento! Mi sono sentita seguita con attenzione e cura dei dettagli, hanno ascoltato davvero...

P

Paola Gallo

4.3

Ho trovato l'ufficio perfetto per la mia attività grazie a questa agenzia, che mi ha seguita con grande professionalità e gentilezza. Durante tutta la trattativa, sono stata rassicurata e assistita, i...

A

Alessandra Gargano

4.3

Le mie precedenti esperienze con agenzie immobiliari erano sempre state fredde e impersonali, ma questa volta è stato tutto diverso: mi sono trovata subito a mio agio grazie alla cortesia e alla compe...