Indietro
Vendita Casa indipendente

Casa indipendente

via Alla Costa Cantalupo, Genova, Genova

Prezzo
Ottimo Affare: 34% sotto la media
145
mq
4
Locali
3
Camere
2
Bagni

Recensisci questo Immobile

Devi essere registrato per lasciare una recensione.

Accedi

Nessuna recensione ancora. Sii il primo!

Descrizione

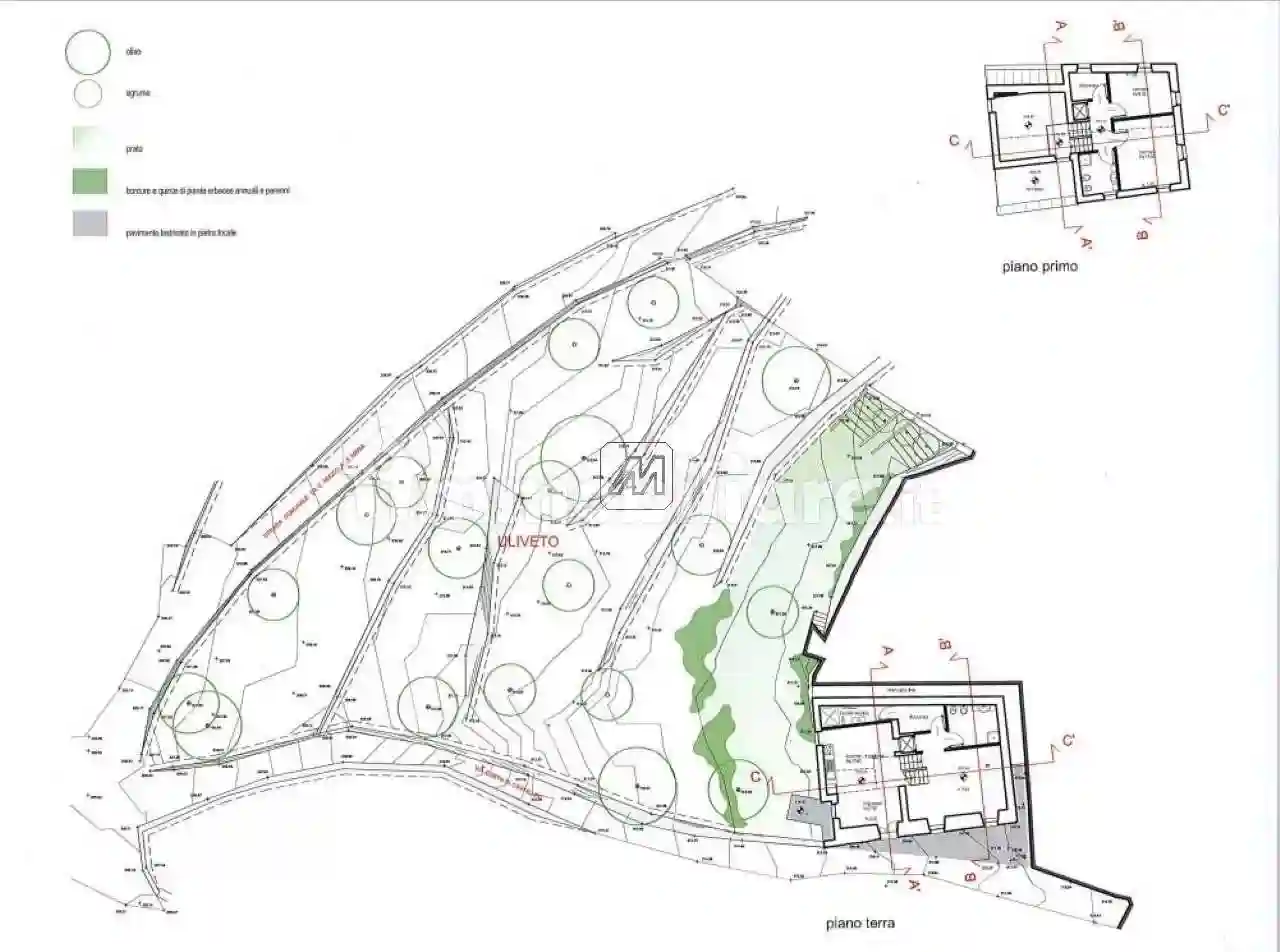
Rif: 23115 - NERVI S.ILARIO ( LOCALITA' SAN ROCCO ) - Siamo lieti di proporre in una delle zone più caratteristiche della Riviera Villa da costruire con progetto approvato ( inizio lavori immediato ) unifamiliare su due paini ( mq 140 ) possibilità soppalco ( mq 14 ) , biservizi, meraviglioso terrazzo ( mq 9 ). Completa la proprietà terreno circostante ( mq 1200 ) destinato ad uliveto e giardino di erbe aromatiche ed agrumi. Vista mare e monti meravigliosa. Posizione comoda. Opportunità unica. Assolutamente da vedere PRENDI APPUNTAMENTO per visitare il posto e vedere progetto telefonando al 010 6981018 - 335 7368279 ed anche per valutare il tuo attuale immobile e conoscerne il reale valore così da poter contare sulla cifra più giusta per affrontare l'acquisto della tua nuova abitazione con serenità.

Caratteristiche

Piano T
Stato Da ristrutturare
Riscaldamento Autonomo

Servizi e accessori

Esposizione esterna

Posizione

Zona: Nervi (Quarto, Quinto, Sant'Ilario)

Referente

Studioemme

Storico

Pubblicato 12 Jan 2026
Aggiornato 27 May 2026
Sul mercato 135 giorni
ID Annuncio 103532308

Recensioni

Vedi tutte
G

Gianmarco Santarelli

5.0

Il percorso verso la mia prima casa è stato emozionante ma anche pieno di dubbi, fortunatamente sono stato seguito da un team davvero disponibile e competente. Hanno reso tutto più semplice, aiutandom...