Indietro
Vendita Rustico - Casale

Rustico - Casale

Via al Deserto, 18, Cogoleto, Genova

450.000 €
Ottimo Affare: 71% sotto la media
575
mq
5+
Locali
6
Camere
3
Bagni

Recensisci questo Immobile

Devi essere registrato per lasciare una recensione.

Accedi

Nessuna recensione ancora. Sii il primo!

Descrizione

Appena lasciato l’abitato di Sciarborasca, sulla strada che porta all’Eremo del Deserto, vendesi grande casa di campagna con terreno.
La casa risale ai primi anni 30’ ed e’ distribuita su tre piani di circa 100 mq l’uno.
Ci accoglie con un magnifico pergolato d’uva, che nell’assoluta stagione estiva crea proprio l’atmosfera ideale per chi si aspetta di trovare una casa che possegga intatte atmosfere di altri tempi e profumi di campagna.
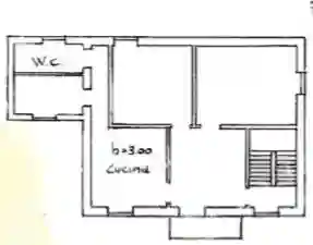
Al piano terreno troviamo un soggiorno, una grande cucina con annessa la sua stanza delle dispense, un bagno ed un ripostiglio. Adiacente, con un suo accesso indipendente dalla campagna, una grande cantina, fresca ed asciutta.
Ogni piano è’ concepito come un appartamento a sé con soggiorno, cucina, due camere, bagno e ripostiglio, con terrazzo o balcone.
Il terreno, caratterizzato da grandi terrazzamenti, e’ tutto esposto al sole e riparato dai venti, con un grande capanno agricolo, con stalla e pollaio. Disposto su più balze, tutte molto ampie, perfette per essere coltivate.
La proprietà è ideale per chi ambisce ad una realtà che offra anche la possibilità di sviluppare tutte quelle attività legate alla campagna, non ultima quella di un b&b o una trattoria tipica.
per visitare immobile contattare nr 3491866775 RATICINQUE IMMOBILIARE.

Caratteristiche

Piano T

Servizi e accessori

Fibra ottica Impianto tv centralizzato Infissi esterni in vetro / legno Taverna

Posizione

Referente

RATICINQUE immobiliare

Storico

Pubblicato 12 Jan 2026
Aggiornato 24 Feb 2026
Sul mercato 44 giorni
ID Annuncio 103889809

Recensioni

Vedi tutte
R

Ruggero Borrelli

4.7

Ho scelto questa agenzia perché mi ha colpito la loro conoscenza delle normative e la pazienza nel guidarmi durante tutto il processo. Mi sono trasferito a Cogoleto per lavoro e avevo bisogno di un af...

M

Marilena Fabbri

4.7

Ho trovato la casa ideale a Cogoleto grazie alla professionalità e competenza dell’agenzia, che mi ha seguita passo dopo passo nella trattativa. Sono stata molto soddisfatta del supporto ricevuto, che...

I

Ilaria Pagano

4.7

Quello che mi ha spinto a scegliere questa agenzia è stata l’ampia scelta di immobili e la loro chiarezza nelle spiegazioni, che mi hanno fatto sentire subito a mio agio. Sono stata davvero soddisfatt...

R

Rossana Franzese

4.7

Quando ho deciso di cercare un ufficio a Cogoleto, mi sono affidata a questa agenzia perché avevo sentito parlare della loro disponibilità e competenza. Mi hanno seguita passo passo, ascoltando davver...

L

Luciana D'Angelo

4.3

Se state cercando un'agenzia immobiliare seria e affidabile, vi consiglio di rivolgervi a loro. Mi sono trovata molto bene grazie alla loro efficienza nella gestione di tutte le pratiche burocratiche...