Casa indipendente
Vendita
Vendita Casa indipendente

Casa indipendente

Via di Rubbiana, Greve in Chianti, Firenze

215.000 €
Ottimo Affare: 63% sotto la media
224
mq
5+
Locali
5
Camere
3+
Bagni

Recensisci questo Immobile

Devi essere registrato per lasciare una recensione.

Accedi

Nessuna recensione ancora. Sii il primo!

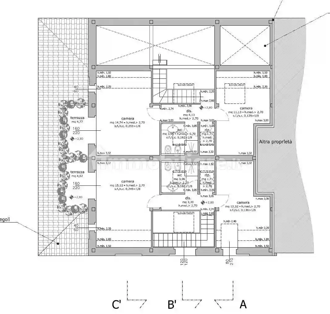
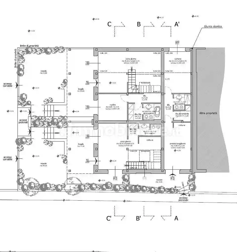
Descrizione

San Polo in Chianti (Greve in Chianti) in ottima posizione residenziale, ad un passo da tutti i servizi, vendesi edificio ex-artigianale di complessivi 210 mq piu spazi esterni con possibilita, di frazionamento e cambio di destinazione. L'edificio, un ex falegnameria posta vicino al centro del paese da ristrutturare, si sviluppa al piano terreno e al piano primo per una superfice complessiva di circa 210mq. Possibilita, gia verificata, di frazionamento in tre unita immobiliari:
- villetta con giardino e ingresso indipendente di complessivi circa 90mq (cucina, soggiorno , due camere e doppi servizi), loggia di 25mq e giardino carrabile di 45mq
- villetta con giardino e ingresso indipendente di complessivi circa 70mq (cucina, soggiorno , due camere e doppi servizi), loggia di 18mq e giardino carrabile di 55mq
- bilocale con ingresso indipendente e giardino di compessivi circa 40mq (soggiorno cottura, camera e servizio)
Possibilita di variazioni sul progetto proposto con modulazione di volumi e superfici in modi diversi. Immobile adatto per investimento per imprenditori ma anche per nuclei familiari multipli. Prezzo Ottimo.
La nostra agenzia, presente sul mercato dal 1976, vanta una lunga esperienza nella vendita e negli affitti di qualunque tipo di immobili: appartamenti, monolocali, bilocali, mini appartamenti, villette, ville, rustici, casali, coloniche, porzioni di coloniche, immobili di prestigio uffici, negozi, fondi artigianali, commerciali, industriali e magazzini. Ci troviamo in Piazza Umberto I a Grassina e dopo tanti anni sul campo siamo esperti nel territorio di Grassina, nel Comune di Bagno a Ripoli, nella zona del Chianti, nella città e nella provincia di Firenze.

Caratteristiche

Piano T
Ascensore No
Stato Da ristrutturare

Servizi e accessori

Esposizione doppia Impianto tv singolo Infissi esterni in vetro / legno Mansarda

Posizione

Referente

Immobiliare Merciai

Storico

Pubblicato 14 Jan 2026
Aggiornato 18 Feb 2026
Sul mercato 37 giorni
ID Annuncio 110962051

Recensioni

Vedi tutte
E

Elisa Sala

4.7

Stavo cercando una casa più vicino ai miei genitori anziani e ho trovato l’agenzia che mi ha seguita con grande professionalità. Sono stata colpita dalla competenza nella trattativa e dalla puntualità...

S

Sandra Zampieri

4.7

Ho trovato la casa perfetta a Bagno a Ripoli, vicina ai miei genitori anziani, e sono stata davvero felice di come mi hanno seguita passo passo in ogni fase. Sono rimasta colpita dall’attenzione alle...

S

Sandro Marchese

4.3

Ho trovato la casa al mare che cercavo, grazie alla competenza e alla chiarezza durante tutta la trattativa. Sono stato molto colpito dall’onestà nelle valutazioni e dall’attenzione ai dettagli, che m...