Appartamento
Vendita
Vendita Appartamento

Appartamento

Via dei Giomi, 62, Capannori, Lucca

275.000 €
Ottimo Affare: 30% sotto la media
141
mq
5+
Locali
3
Camere
2
Bagni

Recensisci questo Immobile

Devi essere registrato per lasciare una recensione.

Accedi

Nessuna recensione ancora. Sii il primo!

Descrizione

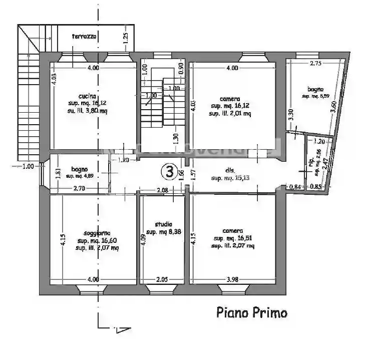
RIF. 9244 - LUMINOSO APPARTAMENTO IN FASE DI RISTRUTTURAZIONE A LUNATA - In piccolo condominio di sole quattro unità in fase di totale ristrutturazione vendesi appartamento di circa 140mq posto al piano primo con ingresso indipendente e ampio ripostiglio esterno di 13 mq. L'appartamento si compone di ingresso in cucina abitabile con terrazzo, soggiorno, due bagni finestrati, due camera matrimoniale, studio e ripostiglio. L'immobile sarà dotato di finiture di alto livello, con soffitti con travi e travicelli, infissi in PVC con vetrocamera, portoncino blindato, impianto TV satellitare. La zona condominiale dove si trovano i parcheggi delle unità abitative saranno totalmente recintati e l'ingresso avverrà tramite due cancelli, pedonale e carrabile. Consegna prevista Novembre 2024.

Caratteristiche

Piano 1
Ascensore No
Stato Nuovo / In costruzione
Riscaldamento Autonomo, a radiatori, alimentato a metano

Servizi e accessori

Cancello elettrico Esposizione esterna Impianto tv centralizzato Infissi esterni in doppio vetro / PVC Porta blindata VideoCitofono

Posizione

Zona: Lammari - Lunata (Lammari, Lunata, Marlia)

Referente

Punto Vendite e Punto Affitto di Lucchesi Manuela

Storico

Pubblicato 14 Jan 2026
Aggiornato 19 Feb 2026
Sul mercato 37 giorni
ID Annuncio 111593541

Recensioni

Vedi tutte
A

Amedeo Brunetti

4.0

Ricordo ancora quel momento quando ho trovato l’ufficio perfetto per la mia attività, grazie alla loro grande capacità di ascolto e alla precisione con cui hanno gestito tutta la documentazione. Sono...

C

Camilla Savini

4.3

Ricordo ancora il momento in cui ho trovato l’ufficio perfetto per la mia attività, è stato fantastico! Sono stata aiutata e seguita passo dopo passo, con molta professionalità e attenzione ai dettagl...

F

Francesca Romani

5.0

Ho finalmente acquistato la casa dei miei sogni dopo anni di affitto, e sono molto soddisfatta del risultato. Sono stata seguita con attenzione e professionalità in ogni fase, trovando l’immobile perf...

L

Lorenzo Franca

5.0

Ho scelto questa agenzia perché cercavo un partner affidabile e rapido per l'acquisto della mia prima casa. Sono stato molto soddisfatto, hanno trovato la soluzione ideale in tempi brevi e mi hanno se...

F

Francesco Fontana

4.7

Cercavo un modo onesto e professionale per vendere la mia casa a Lucca dopo il divorzio, e l’ho trovato in questa agenzia. Mi hanno seguito passo dopo passo, aiutandomi a capire ogni fase con traspare...