Vendita Rustico - Casale

Rustico - Casale

Loiri Porto San Paolo, Sassari

Prezzo
Ottimo Affare: 58% sotto la media
360
mq
5+
Locali

Recensisci questo Immobile

Devi essere registrato per lasciare una recensione.

Accedi

Nessuna recensione ancora. Sii il primo!

Descrizione

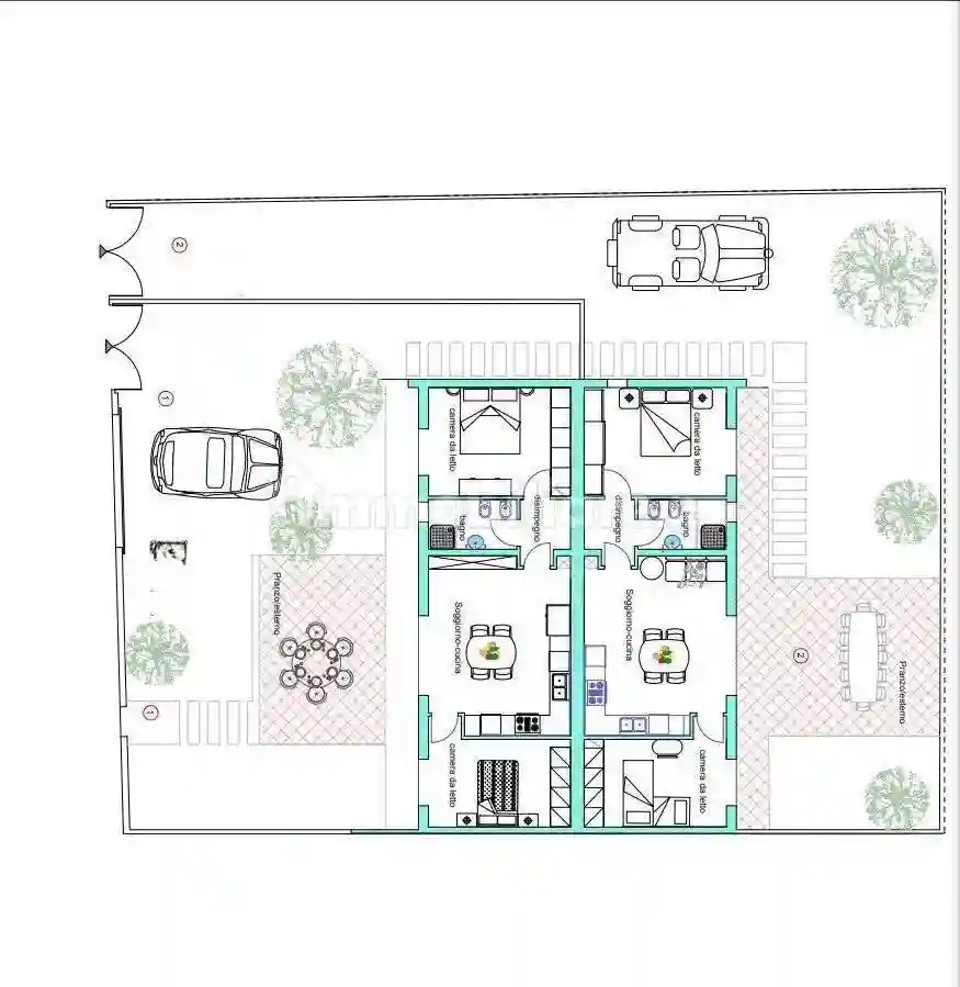
Rustico da completare per la realizzazione di n 4 villette indipendenti con Giardino Privato – Frazione Comune di Loiri Panoramica della Proprietà
A soli 10 minuti dal centro di Olbia, in una località rurale tranquilla e verdeggiante, proponiamo in vendita un al rustico, composto da quattro unità abitative indipendenti. l'immobile offre ampi spazi esterni, un giardino privato e la possibilità di personalizzare gli interni secondo le proprie esigenze. PREZZO TRATTABILE!!

Caratteristiche Principali
Superficie complessiva: circa 360 m² suddivisi su un unico livello + aree esterne

Unità abitative: 4 villette indipendenti

Giardino privato: ampio spazio esterno.

Posizione strategica: a soli 10 minuti dal centro di Olbia, ben collegata e vicino alle principali spiagge

Dettagli degli Appartamenti
Soggiorno: ampio e luminoso, con possibilità di accesso diretto al giardino
Camere da letto: 2 camere per ogni unità
Bagno: 1 bagno per ogni unità, con possibilità di personalizzazione
Veranda coperta: spazio esterno ideale per pranzi e cene all'aperto

Potenzialità e Opportunità
Questa proprietà rappresenta un'ottima opportunità per chi desidera vivere immerso nella natura senza rinunciare alla vicinanza ai servizi cittadini. La possibilità di personalizzare gli interni e gli spazi esterni offre ampie opportunità per creare un ambiente su misura. Inoltre, la posizione strategica e la composizione dell'immobile lo rendono ideale anche per attività ricettive come bed & breakfast o affittacamere. PREZZO TRATTABILE!!

Per tutelare la privacy dei nostri clienti vi informiamo che l’indirizzo è approssimativo e le informazioni e i valori presenti nell’annuncio non costituiscono, in alcun modo, elemento contrattuale. Le informazioni dettagliate e specifiche dell’immobile verranno fornite compilando il form dell’agenzia o contattandoci telefonicamente

Caratteristiche

Piano T
Ascensore No
Stato Nuovo / In costruzione

Servizi e accessori

Esposizione esterna

Posizione

Referente

Agenzia Immobiliare Sogno Casa

Storico

Pubblicato 14 Jan 2026
Aggiornato 02 May 2026
Sul mercato 108 giorni
ID Annuncio 114846339

Recensioni

Vedi tutte
G

Gennaro Dini

4.7

Ricordo ancora il momento in cui ho trovato la casa ideale per stare più vicino ai miei genitori, grazie all'attenta guida dell'agenzia. Sono stato molto contento della competenza dimostrata nella tra...