Villa
Vendita
Vendita Villa Luxury

Villa

Reggio Emilia, Reggio Emilia

550.000 €
146
mq
5
Locali
3
Camere
2
Bagni

Recensisci questo Immobile

Devi essere registrato per lasciare una recensione.

Accedi

Nessuna recensione ancora. Sii il primo!

Descrizione

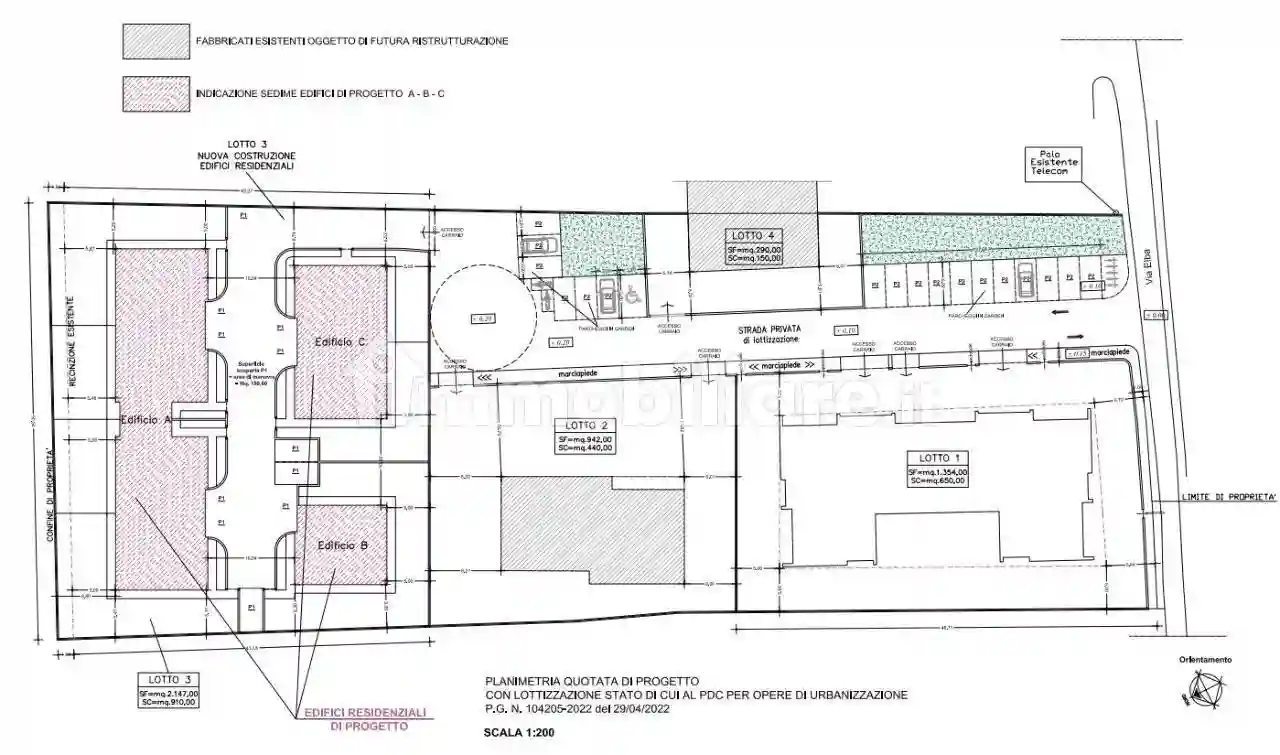
RIF. 849 D - COVIOLO: in una via chiusa all'interno di un bellissimo quartiere residenziale a pochi passi dal centro di Coviolo, proponiamo in vendita villa singola di nuova edificazione. La villa si sviluppa su due livelli ed è così composta: al piano terra sala con affaccio sul giardino privato, cucina abitabile, un bagno, oltre a garage, cantina e deposito attrezzi; al piano primo 3 camere matrimoniali, un bagno e una loggia. Classe energetica A. Possibilità di personalizzazione sia nella disposizione interna che nella scelta delle finiture. Consegna giugno 2026. Prezzo euro 550.000

Caratteristiche

Piano T
Ascensore No
Stato Nuovo / In costruzione
Riscaldamento Autonomo, a pavimento, alimentato a teleriscaldamento

Servizi e accessori

Porta blindata

Posizione

Zona: Coviolo - Roncina (Periferia Ovest)

Referente

L'euroimmobiliare

Storico

Pubblicato 12 Jan 2026
Aggiornato 18 Feb 2026
Sul mercato 39 giorni
ID Annuncio 115559627

Recensioni

Vedi tutte
A

Adriano De Simone

4.7

La tranquillità di una zona immersa nel verde mi ha conquistato fin dal primo sopralluogo. Grazie alla grande competenza dell’agenzia nella trattativa, sono riuscito a trovare la casa perfetta in temp...

T

Tiziano Malerba

4.7

Le altre agenzie avevano promesso molto, ma questa mi ha colpito per la cura dei dettagli e la pazienza con cui mi hanno seguito. Ho trovato un appartamento vista mare che rispecchia esattamente quell...

G

Giuseppe Filippi

4.3

Ricordo ancora quel momento in cui sono entrato in un appartamento che sembrava fatto apposta per la mia famiglia in crescita. Ho apprezzato molto l’attenzione alle nostre esigenze e il modo paziente...