Vendita Villa

Villa

Contrada forconile, Gavignano, Roma

Prezzo
Buon Prezzo: 17% sotto la media
420
mq
5+
Locali
4
Camere
3+
Bagni

Recensisci questo Immobile

Devi essere registrato per lasciare una recensione.

Accedi

Nessuna recensione ancora. Sii il primo!

Descrizione

GAVIGNANO : località Forconile

Adiacente al Paese di Gavignano proponiamo in vendita una soluzione indipendente completamente da rifinire.
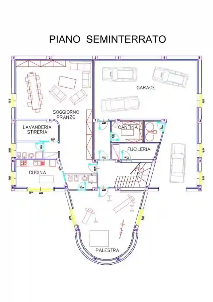
L'immobile è strutturato su quattro livelli.

Entrando dal seminterrato di circa 240mq si può realizzare un garage con locale tecnico, proseguendo un soggiorno e un piccolo spazio per lavanderia/stireria, una cucina e nella parte angolare una palestra.

Spostandoci al piano terra di circa 95mq possiamo realizzare un ingresso il quale ci porta ad un disimpegno che sfocia in un ampio e luminoso soggiorno, una cucina a vista, una sala da pranzo con affaccio sul terreno e un bagno.

Al piano primo di circa 85mq abbiamo la zona notte composta da due bagni e tre camere da letto, di cui la camera padronale prevede la realizzazione di una cabina armadio e la realizzazione di una porta finestra con affaccio sul terrazzo ed una vista panoramica.

Al piano secondo nonchè ultimo piano di circa 35mq si può realizzare un bagno, uno studio o una camera e una zona tecnica , il tutto completato da un terrazzo.

L'immobile è immerso nel verde, con un terreno di circa 3000mq.
Consigliato per chi ama stare a contatto con la natura e vivere momenti di pace.

Per ulteriori informazioni e/o prendere appuntamento contattaci al: 06.97.20.00.95 - 347.75.48.763
Agli stessi recapiti telefonici puoi richiederci una valutazione totalmente gratuita e senza impegno del tuo immobile.

Caratteristiche

Ascensore No
Stato Nuovo / In costruzione

Posizione

Referente

Affiliato Tecnocasa: PUNTO MEDIAZIONI SRLU

Storico

Pubblicato 12 Jan 2026
Disattivato 02 Mar 2026
Sul mercato 89 giorni
ID Annuncio 117927259

Recensioni

Vedi tutte
U

Ugo Oliveri

5.0

Ricordo ancora il momento in cui ho firmato il contratto e ho capito che avevo trovato la casa giusta in tempi record. Sono stato molto soddisfatto della loro flessibilità negli orari e della rapidità...

D

Diego Loi

4.7

Ho scelto questa agenzia perché cercavo un professionista serio e competente che potesse guidarmi nella vendita di un appartamento di famiglia. Sono stato molto soddisfatto del modo in cui hanno gesti...

D

Diana Savini

4.7

Durante tutto il processo mi sono sentita supportata e ascoltata, il team è stato molto onesto nelle valutazioni e ha sempre rispettato i tempi. Sono stata seguita con professionalità e rapidità, il c...