Vendita Appartamento

Quadrilocale ottimo stato, Roges, Rende

Rende, Cosenza

245.000 €
Ottimo Affare: 42% sotto la media
297
mq
4
Locali
2
Camere
2
Bagni

Recensisci questo Immobile

Devi essere registrato per lasciare una recensione.

Accedi

Nessuna recensione ancora. Sii il primo!

Descrizione

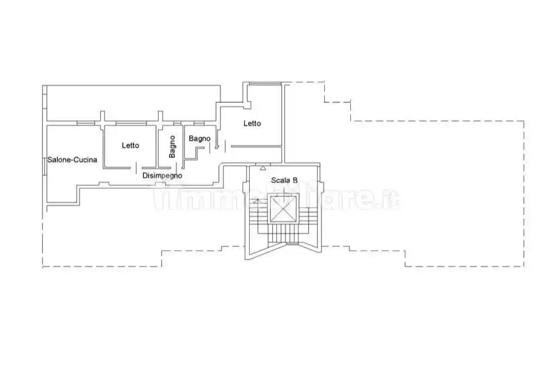
In vendita a Rende, nella ricercata zona di Roges, Rete Immobiliare.eu propone un elegante attico di 95 mq interni circa, più terrazzo di mq 202 situato al terzo piano con ascensore.

L'appartamento offre un'ottima distribuzione degli spazi ed è composto da salone/cucina con angolo cottura, 2 camere da letto e 2 bagni, perfetto per famiglie o professionisti in cerca di comfort e stile.

L'immobile è arredato con gusto e dispone di una moderna cucina con angolo cottura.
Il riscaldamento è autonomo e l'aria condizionata garantisce un clima piacevole in ogni stagione.

Uno dei punti forti di questo attico è la sua splendida terrazza di ben 212 mq, perfetta per godere di momenti di relax all'aperto o per organizzare cene con amici e familiari, offrendo una vista panoramica sul contesto circostante.

Nel prezzo di vendita è incluso anche un box posto al pian terreno di mq 27.
Classe energetica F EPgl 177,7 kWh/m² annuo.

Non perdere l'opportunità di vivere in un ambiente esclusivo e confortevole; contattaci per informazioni o per prenotare un sopralluogo al numero 0984.186.36.92. Classe Energetica: F EPI: 128,07 kwh/m2 anno

Caratteristiche

Piano 3°, con ascensore
Ascensore Si
Garage 1 in box privato/box in garage

Servizi e accessori

Arredato

Posizione

Agenzia Immobiliare

Storico

Pubblicato 11 Jan 2026
Aggiornato 24 Feb 2026
Sul mercato 46 giorni
ID Annuncio 118056459