Vendita Villa

Villa

Via Barge, 20, Saluzzo, Cuneo

Prezzo su richiesta
905
mq
5+
Locali
3
Camere
3+
Bagni

Recensisci questo Immobile

Devi essere registrato per lasciare una recensione.

Accedi

Nessuna recensione ancora. Sii il primo!

Descrizione

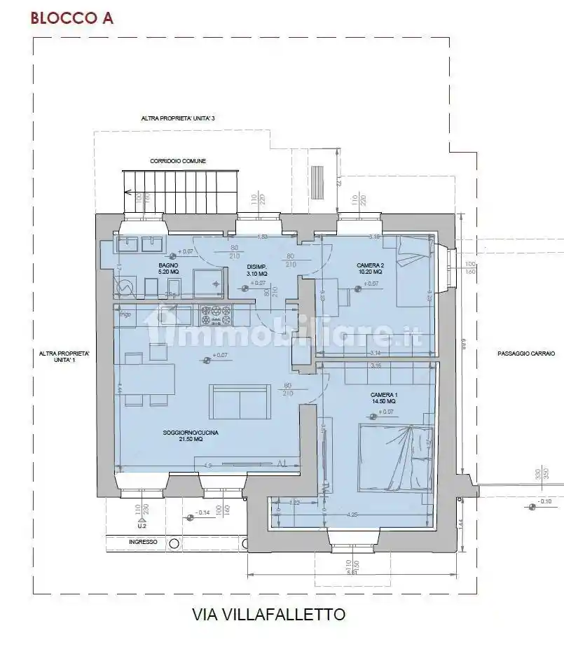
SALUZZO - VIA BARGE 20/22: in zona residenziale di recentissima edificazione, proprietà composta da abitazione con annesso locale ad uso magazzino/deposito; l'abitazione consta di una villa unifamiliare indipendente su 4 (quattro) lati, composta da piano seminterrato di autorimessa, taverna, ripostiglio, cantina con forno a legna; piano rialzato di appartamento su un piano unico composto da ingresso living in salone con angolo cucina, disimpegno, due camere, cabina armadio e doppi servizi con scala a vista per accedere al piano superiore dove troviamo lo studio con bagno privato; dalla zona giorno si accede all’ esterno di ampio terrazzo con vista sul Monviso, giardino e cortile privato completamente recintato; completa la proprietà un locale di civile abitazione ad uso artigianale di ampia metratura. Attualmente adibito ad attività professionale può essere utilizzato ad uso ufficio, box auto, rimessa camper e con opportuno cambio di destinazione d'uso anche ai fini abitativi. L'immobile è di recente ristrutturazione con finiture di pregio. Le ampie dimensioni dei locali e lo spazio esterno consentono di poter utilizzare l’ immobile ai fini professionali quali attività artigianali.

Caratteristiche

Ascensore No
Stato Ottimo / Ristrutturato
Riscaldamento Autonomo, a pavimento, alimentato a legna

Servizi e accessori

Cancello elettrico Esposizione doppia Impianto di allarme Impianto tv singolo Infissi esterni in doppio vetro / PVC Mansarda Taverna VideoCitofono

Posizione

Referente

Immobiliar&OLTRE

Storico

Pubblicato 13 Jan 2026
Aggiornato 25 Feb 2026
Sul mercato 43 giorni
ID Annuncio 118132201

Recensioni

Vedi tutte
O

Oscar Lucchini

4.7

Ho trovato rapidamente l’ufficio perfetto per la mia attività grazie a un’attenta gestione della trattativa da parte dell’agenzia. Sono stato molto soddisfatto del supporto ricevuto, che mi ha aiutato...

M

Maurizio Maltese

4.3

Dopo aver provato altre agenzie senza trovarmi completamente a mio agio, questa volta ho trovato il supporto e la trasparenza che cercavo. Lo stato di stress del divorzio è stato reso molto più facile...