Vendita Villa Luxury

Villa

Largo Dell' Olgiata, Roma, Roma

2.800.000 €
584
mq
5+
Locali
6
Camere
3+
Bagni

Recensisci questo Immobile

Devi essere registrato per lasciare una recensione.

Accedi

Nessuna recensione ancora. Sii il primo!

Descrizione

Villa in vendita a Roma, Olgiata
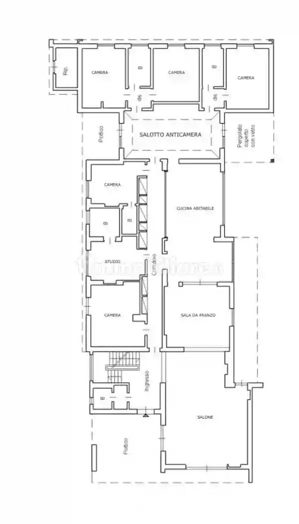
Area-re propone la vendita di una meravigliosa villa di lusso unica nel suo genere sia per le prestigiose rifiniture che per la sua composizione interna ed esterne. Internamente la villa è disposta su due livelli; al piano interrato vi è un garage di 80 mq circa, il locale caldaia, la zona lavanderia e stireria ed un bagno privato, al piano terra si accede dall'ingresso principale in un lussuoso salone, sempre al piano terra è situata un'ampia sala da pranzo ed adiacente la grande cucina, separata dalla zona giorno c'è la zona notte composta da cinque camere e quattro bagni, ed infine si arriva al primo piano totalmente patronale composta da un'unica suite al cui interno vi è la camera due cabine armadio un bagno e un terrazzo . Oltre alla lussuosa disposizione interna vi è un giardino di circa 5000 mq che circonda la villa e presenta al suo interno un campo da calcio un'area relax adiacente alla piscina ed una zona riservata alla coltivazione di ortaggi con un locale attrezzi attiguo. La villa è situata nel lussuoso e residenziale comprensorio dell' Olgiata chiuso e sorvegliato al suo interno con una vigilanza ed assistenza perenne che ne garantiscono la privacy e la serenità consentendo l'opportunità di vivere l'eleganza e il comfort.
La gestione dell'immobile è curata dallo Store Monteverde che rappresenta il punto AREA-RE all'interno del Municipio XII. La sede collocata su via di Donna Olimpia n.150 cura le transazioni immobiliari che avvengono su tutta l'area del municipio. L'ottima conoscenza del mercato, la costante e crescente specializzazione dei propri Personal Agent, uniti all'elevata visibilità del portafoglio immobili per mezzo della propria vetrina, all'ausilio di tutti i mezzi di promozione commerciale web e cartacei e alla molteplicità dei servizi offerti a supporto dell'acquisto, fanno dello Store Monteverde il punto di riferimento nella compagine immobiliare del quartiere. Qualunque sia la Vostra esigenza immobiliare, contattateci al num. 06.58233675 o inviateci una e-mail all'indirizzo monteverde@area-re.it. o visitate il nostro sito www.area-re.it . AREA-RE il futuro è di casa.

Caratteristiche

Ascensore No
Stato Ottimo / Ristrutturato
Riscaldamento Autonomo, a radiatori, alimentato a gasolio

Servizi e accessori

Armadio a muro Caminetto Campo da tennis Cancello elettrico Esposizione esterna Fibra ottica Idromassaggio Impianto di allarme Impianto tv singolo Infissi esterni in doppio vetro / PVC Piscina Porta blindata Taverna VideoCitofono

Posizione

Zona: Olgiata (Olgiata, Giustiniana)

Referente

Area-Re Monteverde

Storico

Pubblicato 15 Jan 2026
Aggiornato 24 Feb 2026
Sul mercato 41 giorni
ID Annuncio 118401895

Recensioni

Vedi tutte
F

Flavio Lamberti

5.0

Dopo alcune esperienze negativa in passato, questa agenzia mi ha davvero colpito per serietà e professionalità. Ho trovato tutto molto pratico e senza stress, grazie alla gestione attenta e competente...

C

Carlotta Laterza

4.7

Quando ho deciso di acquistare casa dopo anni di affitto, cercavo un’agenzia che fosse seria e trasparente, e questa mi ha subito colpito per la chiarezza nelle spiegazioni. Mi sono sentita seguita pa...

F

Fabiana Mercuri

4.7

Ho trovato un bellissimo bilocale a Roma grazie a questa agenzia, sono stata davvero soddisfatta dell’attenzione e della disponibilità dimostrata. Mi hanno seguita con cura e professionalità in ogni f...

F

Flavia Passeri

4.7

Ricordo ancora il momento in cui ho ricevuto la proposta di vendita e mi sono sentita subito seguita e rassicurata. Sono stata molto soddisfatta dell'assistenza post-vendita e della chiarezza con cui...

A

Alessandra Lorusso

4.0

Grazie di cuore per l'assistenza impeccabile! Sono stata veramente soddisfatta del supporto cortese e disponibile che ho ricevuto durante l'acquisto della mia seconda casa al mare. Mi sono sentita seg...