Vendita Villa Luxury

Villa

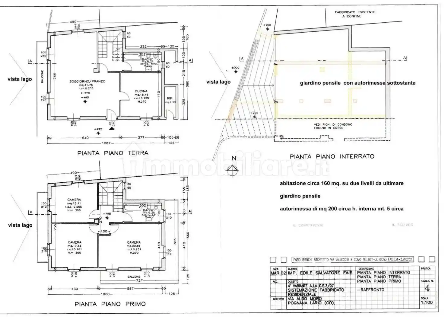
Via Aldo Moro, Pognana Lario, Como

Prezzo
180
mq
5
Locali
3
Camere
3
Bagni

Recensisci questo Immobile

Devi essere registrato per lasciare una recensione.

Accedi

Nessuna recensione ancora. Sii il primo!

Descrizione

Villa indipendente al rustico su due livelli, giardino, box doppio h. 6.00 mt.
Ottima vista sul lago.

Caratteristiche

Piano 3 piani: Interrato (-1), Piano terra, 1°
Ascensore No
Stato Nuovo / In costruzione
Riscaldamento Autonomo
Garage 3 in box privato/box in garage

Servizi e accessori

Bagno per disabili Cucina Terrazzo Giardino privato Infissi esterni in triplo vetro / legno

Posizione

Agenzia Immobiliare

Storico

Pubblicato 02 Jan 2026
Aggiornato 15 Apr 2026
Sul mercato 103 giorni
ID Annuncio 119037271