Appartamento
Vendita
Vendita Appartamento

Appartamento

Cuneo, Cuneo

195.000 €
93
mq
4
Locali
2
Camere
1
Bagni

Recensisci questo Immobile

Devi essere registrato per lasciare una recensione.

Accedi

Nessuna recensione ancora. Sii il primo!

Descrizione

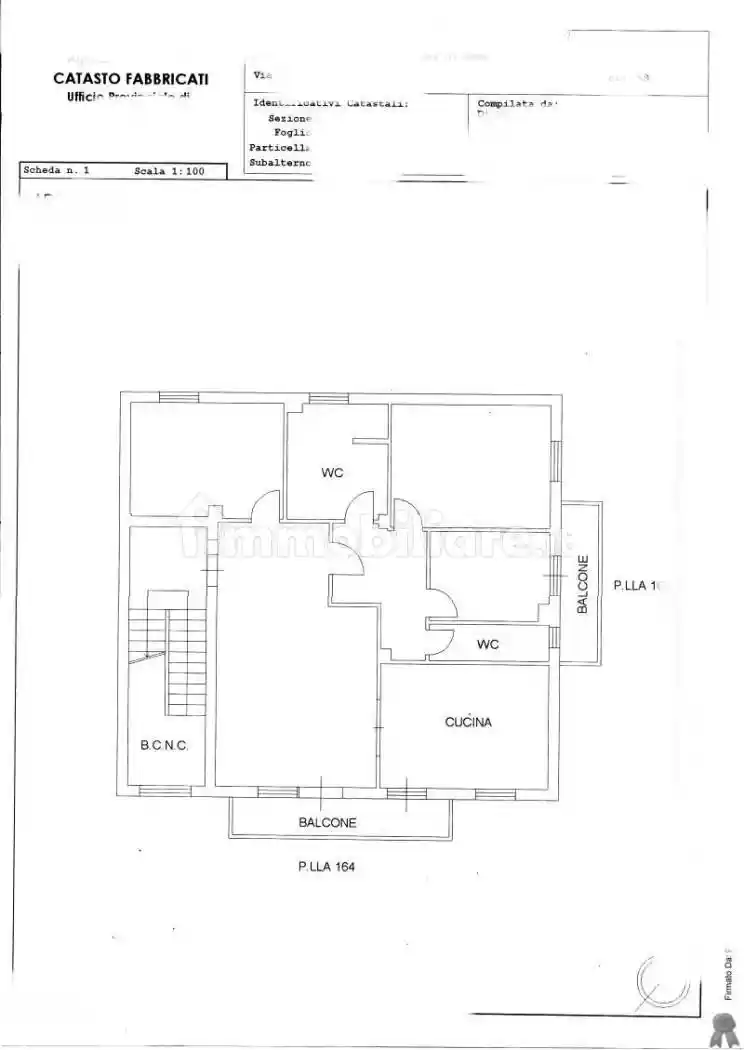
In piccolo complesso residenziale appartamento in ottime condizioni al piano primo (secondo fuori terra) di ingresso, 3 camere, cucina, bagno, ripostiglio, veranda, ampi balconi e cantina al piano interrato. L'immobile è dotato di riscaldamento autonomo ed una ottima esposizione al sole.
Possibilità di acquisto box auto di 16 mq. nel condominio ad € 20.000,00

Caratteristiche

Piano 1
Ascensore No
Stato Buono / Abitabile
Riscaldamento Autonomo, a radiatori, alimentato a metano

Servizi e accessori

Armadio a muro Cancello elettrico Esposizione esterna Impianto di allarme Impianto tv centralizzato Infissi esterni in vetro / legno VideoCitofono

Posizione

Zona: San Rocco Castagnaretta (Donatello, San Paolo, San Rocco Castagnaretta)

Referente

COLOMBERO Immobiliare

Storico

Pubblicato 13 Jan 2026
Aggiornato 18 Feb 2026
Sul mercato 38 giorni
ID Annuncio 119153189

Recensioni

Vedi tutte
L

Livio Nardone

4.7

Se cercate un'agenzia immobiliare affidabile, consiglio di rivolgersi a chi garantisce tempestività e flessibilità negli orari. Ho trovato nell'agenzia un supporto attento e professionale, sempre pron...

A

Alessandra Sabbatini

5.0

Ho trovato l’agenzia molto professionale e disponibile. Mi sono sentita seguita e aiutata in ogni fase, con appuntamenti puntuali e una grande rapidità nel trovare la casa giusta. Sono davvero grata p...

U

Umberto Messina

4.3

Durante il processo mi sono sentito molto supportato e seguito con cortesia e professionalità. L’agenzia ha dimostrato una buona conoscenza del mercato locale, aiutandomi a trovare l’investimento gius...

A

Alessandro Polito

4.7

Quella che mi ha spinto a scegliere questa agenzia è stata la loro professionalità e il modo in cui si sono presi cura di ogni dettaglio. Sono stato molto felice del supporto nella fase di mutuo e app...