Appartamento
Vendita
Vendita Appartamento

Appartamento

Via Montevecchio, Modena, Modena

178.000 €
48
mq
2
Locali
1
Camere
1
Bagni

Recensisci questo Immobile

Devi essere registrato per lasciare una recensione.

Accedi

Nessuna recensione ancora. Sii il primo!

Descrizione

VR124M - CENTRO STORICO
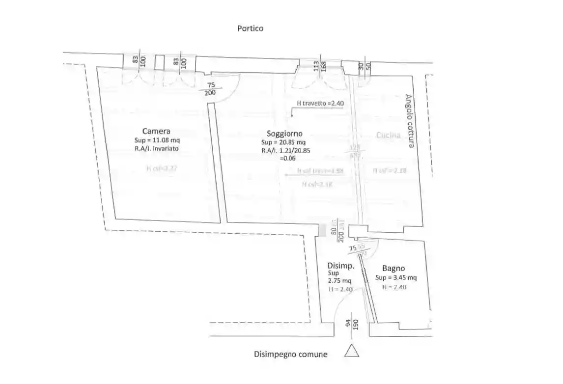
Si propone bilocale al primo piano, in fase di ristrutturazione e per ora interamente personalizzabile, sito in palazzina senza ascensore adiacente a Via Taglio;
Dotato di termo autonomo e di basse spese condominiali si compone internamente di: ingresso, bagno con piccola finestra, soggiorno con parete cucina a vista e camera da letto con doppia finestra.

Il capitolato prevede:
Realizzazione di nuovo impianto idrico sanitario e cucina;
Realizzazione di nuovo impianto di riscaldamento compreso di caldaia e termosifoni;
Realizzazione nuovo impianto gas;
Fornitura e posa di nuovo impianto di climatizzazione;
Realizzazione di nuovo impianto elettrico;
Realizzazione di controsoffitti;
Realizzazione di nuovo intonaco civile, fornitura e posa di massetto a ritiro controllato e di nuova pavimentazione in gress porcellanato;
Fornitura posa di microresina applicata a rullo sia a pavimento che a rivestimento nel bagno;
Fornitura e posa di porta blindata;
Fornitura e posa di porta scorrevole ed a battente;
Tinteggiatura delle pareti e trattamento dei travi e del soffitto in legno;

Richiesta Euro 178.000
Possibilità di acquistare l'immobile nello stato di fatto con contratto impresa a parte per favorire del credito di imposta.

Caratteristiche

Piano 1
Ascensore No
Stato Nuovo / In costruzione
Riscaldamento Autonomo, a radiatori, alimentato a metano

Servizi e accessori

Esposizione esterna Fibra ottica Impianto tv centralizzato Infissi esterni in doppio vetro / legno Porta blindata

Posizione

Zona: Centro Storico (Centro)

Referente

Ducale Immobiliare

Storico

Pubblicato 12 Jan 2026
Aggiornato 18 Feb 2026
Sul mercato 39 giorni
ID Annuncio 119917654

Recensioni

Vedi tutte
S

Serena Ferretti

4.0

Grazie di cuore per avermi aiutato a trovare l’appartamento perfetto per la mia famiglia in crescita! Mi sono trovata subito a mio agio: sono stati molto gentili e sempre disponibili, anche con orari...

C

Caterina Mauri

5.0

Stavo cercando una casa a Modena dopo anni di affitto e finalmente l’ho trovata grazie a questa agenzia. Mi sono sentita seguita e supportata in ogni fase, anche con il mutuo, e le spiegazioni sono st...

V

Veronica De Simone

4.7

Se cercate un'agenzia immobiliare affidabile, consiglio di sceglierne una che vi segua con pazienza e onestà come hanno fatto con me. Sono stata molto soddisfatta del supporto continuo durante tutta l...