Vendita Villa

Villa

Corso Ara di Giove, Pedara, Catania

340.000 €
180
mq
5+
Locali
1
Bagni

Recensisci questo Immobile

Devi essere registrato per lasciare una recensione.

Accedi

Nessuna recensione ancora. Sii il primo!

Descrizione

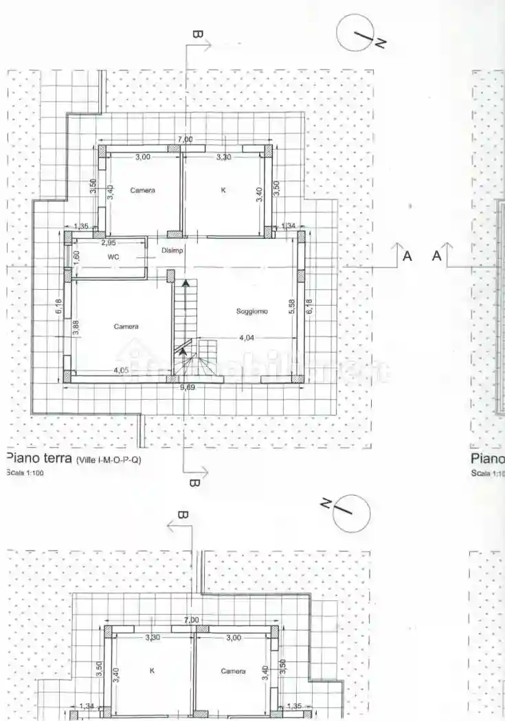
Cod.V134 Pedara a poca distanza dal centro proponiamo in vendita villa singola di nuova costruzione di circa 180 mq.
Le villa è composta nel seguente modo, piano terra: ingresso su salone, cucina (con possibilità di realizzare una zona living cucina-soggiorno), camera da letto, cameretta, bagno e giardino - piano cantinato: zona open space, oltre lavanderia e ripostiglio, con spazio esterno a livello - piano mansardato: locale tecnico di 25 mq. Lotto terreno di circa 800 mq.
L'immobile dispone di impianto fotovoltaico, solare termico, pompe di calore, riserva idrica di 10.000 lt.
Possibilità di piscina.
Possibilità di personalizzare le rifiniture.
Classe energetica : A
Consegna entro l'anno 2025.
Richiesta Euro 340.000

Per info: 3407136765 - 0957800031

Caratteristiche

Ascensore No
Stato Nuovo / In costruzione
Riscaldamento Autonomo

Servizi e accessori

Mansarda

Posizione

Di Prima Immobiliare

Agenzia

Referente

Di Prima Immobiliare

Storico

Pubblicato 21 Jan 2026
Aggiornato 23 Feb 2026
Sul mercato 34 giorni
ID Annuncio 120006100