Trilocale via Fortezza 21, Villa San Giovanni, Milano
Vendita
Vendita Apartment

Trilocale via Fortezza 21, Villa San Giovanni, Milano

Via Fortezza, 21, Milan, Milan

249.000 €
Buon Prezzo: 22% sotto la media
65
mq
3
Locali
2
Camere
1
Bagni

Recensisci questo Immobile

Devi essere registrato per lasciare una recensione.

Accedi

Nessuna recensione ancora. Sii il primo!

Descrizione

No agenzia
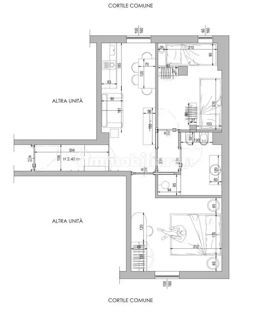
Accogliente trilocale, perfetto per chi cerca comfort e praticità. L’appartamento è composto da:
• Una camera da letto luminosa
• Una stanzetta versatile, ideale come studio o cameretta
• Cucina abitabile
• Ampio bagno
L’appartamento è già dotato di impianto di riscaldamento e raffreddamento.

L’immobile gode di detrazioni fiscali ancora in corso, che potranno essere trasferite al futuro proprietario.

Caratteristiche

Piano Piano rialzato

Servizi e accessori

Cucina Infissi esterni in doppio vetro / pvc

Posizione

Zona: Villa San Giovanni (Precotto, Turro)

Agenzia Immobiliare

Storico

Pubblicato 11 Jan 2026
Aggiornato 15 Feb 2026
Sul mercato 41 giorni
ID Annuncio 120283292