Villa
Vendita
Vendita Villa

Villa

Viale Giacomo Leopardi, Rimini, Rimini

790.000 €
Ottimo Affare: 47% sotto la media
444
mq
5+
Locali
7
Camere
3+
Bagni

Recensisci questo Immobile

Devi essere registrato per lasciare una recensione.

Accedi

Nessuna recensione ancora. Sii il primo!

Descrizione

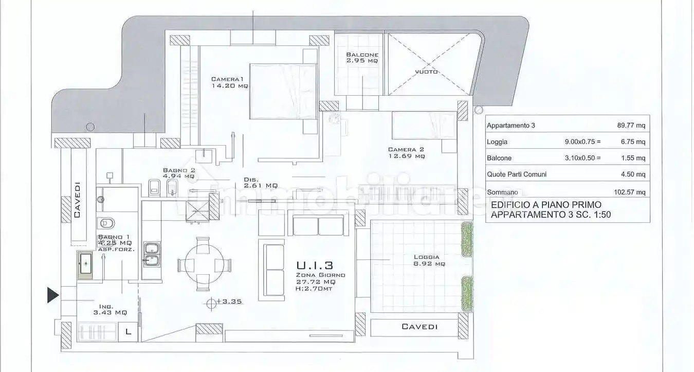
Zona Parco del mare: a 300 metri dalla spiaggia, piazzale Benedetto Croce e piazzale Marvelli, adiacente a tutti i servizi principali e vicino alla fermata del metro’ mare, disponiamo di Trifamiliare, composta da tre appartamenti, ognuno con ingresso indipendente.
Un primo appartamento fronte strada, di 155 mq è disposto su tre livelli, di cui al piano terra di 100 mq con ampio ingresso, sala, cucina abitabile, due camere e due bagni, nel disimpegno si trova la scala in muratura che porta al piano primo di 55 mq dove troviamo due camere matrimoniali e un ampio terrazzo di 52 mq e un bagno nel piano mezzanino dal quale poi si procede al vano sottotetto di 55 mq diviso in due stanze con altezza massima 2,43 mt e minima di 0,7 mt.
Sul retro un secondo appartamento di 92 mq al piano terra, indipendente, con ampio ingresso, sala, cucinotto, due camere da letto e bagno.
Un terzo appartamento indipendente, sul retro, di 92 mq con ingresso al piano terra su vano scala dal quale si accede al piano primo dove l’immobile si sviluppa con ampio ingresso, ala e cucina separata con terrazzino, due camere matrimoniali e bagno, dalla scala interna si prosegue a un ampio vano sottotetto di 92 mq con altezza massima di 2,85 mt e altezza minima di 1 mt.
Tutta la proprietà dispone di corte che gira su tre lati. Possibilità di creare un quarto appartamento.

Caratteristiche

Stato Da ristrutturare
Riscaldamento Autonomo

Servizi e accessori

Esposizione esterna Mansarda

Posizione

Zona: Tripoli Mare (San Giuliano a Mare, Marina Centro, Tripoli Mare)

Referente

Rimini Immobiliare

Storico

Pubblicato 12 Jan 2026
Aggiornato 18 Feb 2026
Sul mercato 38 giorni
ID Annuncio 120410794

Recensioni

Vedi tutte
M

Maurizio Perrone

5.0

Grazie mille per l'aiuto, mi sono trovato davvero bene con questa agenzia. Hanno dimostrato grande attenzione alle mie esigenze e sono stati precisi e puntuali in tutta la documentazione. Un servizio...