Vendita Casa indipendente

Casa indipendente

Fabrica di Roma, Viterbo

Prezzo
Ottimo Affare: 33% sotto la media
163
mq
5+
Locali
4
Camere
3
Bagni

Recensisci questo Immobile

Devi essere registrato per lasciare una recensione.

Accedi

Nessuna recensione ancora. Sii il primo!

Descrizione

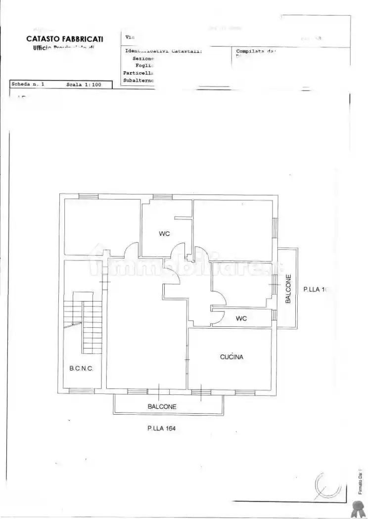
Nel centro di Fabrica di Roma, proponiamo in vendita un cielo-terra da ristrutturare, disposto su tre livelli e caratterizzato da ampi spazi e una buona versatilità. Con una superficie complessiva di 163 mq, l'immobile offre quattro camere da letto, perfette per una famiglia numerosa o per chi desidera ambienti spaziosi e luminosi.

La disposizione interna può garantire comodità e funzionalità: l'ampio salone, la cucina abitabile, tre bagni ben distribuiti sui diversi livelli assicurano praticità e comfort. Grazie alle sue caratteristiche, questa proprietà rappresenta un'opportunità ideale per chi vuole personalizzare la propria casa secondo i propri gusti, trasformandola in una dimora accogliente.

Questa proprietà è rivolta a coloro che ricercano un investimento immobiliare con grande potenziale o una residenza da ristrutturare su misura .

Le presenti informazioni e planimetrie sono meramente indicative e non costituiscono elementi contrattuali.

Caratteristiche

Stato Da ristrutturare
Riscaldamento Autonomo

Posizione

Referente

Engel & Völkers Viterbo

Storico

Pubblicato 24 Feb 2026
Disattivato 04 Apr 2026
Sul mercato 51 giorni
ID Annuncio 121309164

Recensioni

Vedi tutte
D

Dario Scaglione

5.0

Appena sono entrato in uno degli uffici che mi hanno mostrato, sono rimasto colpito dalla cura dei dettagli e dall’attenzione che mettono in ogni cosa. La disponibilità dello staff mi ha fatto sentire...