Villa
Vendita
Vendita Villa Luxury

Villa

Muggia, Trieste

380.000 €
132
mq
3
Locali
2
Camere
1
Bagni

Recensisci questo Immobile

Devi essere registrato per lasciare una recensione.

Accedi

Nessuna recensione ancora. Sii il primo!

Descrizione

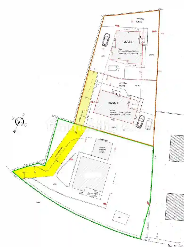
Nella zona di Chiampore (Darsella di Chiampore) a Muggia, con accesso tramite una comoda strada, proponiamo in vendita due villette indipendenti di nuova costruzione.

Il due lotti, con superfici tra i 400 e i 440 mq hanno sagome rettangolare e quadrata. Entrambi gli edifici svilupperanno la maggior superficie abitabile sul piano terra, e saranno completati da ampi vani sottotetto impreziositi da degli abbaini.

La villetta (A), con superficie di circa 88 mq presenterà una spaziosa zona giorno, cucina abitabile e uscita al portico, affacciato sul giardino e perfetto per ospitare una zona giorno estiva. La zona notte si comporrà di due camere da letto di cui una matrimoniale e bagno finestrato.

La villetta (B), con superficie di circa 84 mq presenterà anch’essa una spaziosa zona giorno, cucina abitabile e uscita all’ampio portico. La zona notte si comporrà di due camere da letto di cui una matrimoniale e bagno finestrato.

Da una scala si potrà accedere al piano sottotetto da adibire a deposito, studio o zona relax. Le superfici dei vani sottotetto vanno a sommarsi a quelle sopracitate.

L’esposizione dei lotti è ottima, a SUD-OVEST. L’edificio presenterà una classe energetica massima.

L’immobile sarà eretto in edilizia di tipo tradizionale con cappotto, pompe di calore, pannelli solari e batterie di accumulo. L’utenza del gas non è prevista, gli immobili infatti non ne necessiteranno. Vi saranno inoltre l’aria condizionata e il riscaldamento a pavimento. La fognatura sarà gestita tramite fossa privata (la zona non è servita dalla rete fognaria comunale).

I giardini, pianeggianti, ospiteranno anche le zone di parcheggio private.

Il capitolato e relazioni tecniche sono visionabili in ufficio.

Le immagini e le planimetrie sono esemplificative e potranno subire delle modifiche in corso d’opera. Le tempistiche di realizzazione verranno stabilite con il cliente.

Caratteristiche

Ascensore No
Stato Nuovo / In costruzione
Riscaldamento Autonomo, a pavimento, alimentato a pompa di calore

Servizi e accessori

Cancello elettrico Esposizione esterna Impianto tv singolo Infissi esterni in doppio vetro / PVC Mansarda Porta blindata

Posizione

Referente

Casa con Giardino - di Martina Micalizzi

Storico

Pubblicato 12 Jan 2026
Aggiornato 18 Feb 2026
Sul mercato 38 giorni
ID Annuncio 122043144

Recensioni

Vedi tutte
T

Tania Quattrocchi

4.7

Ho trovato l'agenzia molto professionale e attenta alle mie esigenze. Mi sono sentita seguita con grande efficienza durante tutta la gestione delle pratiche, che sono state rapide e senza intoppi. Gra...

N

Nino Donati

5.0

Quando ho trovato quella casa con il giardino perfetto, ho capito subito che avevo fatto la scelta giusta. L'agenzia si è dimostrata super competente nella trattativa e sempre disponibile a rispondere...

N

Nicoletta Zito

4.7

Se cercate un'agenzia immobiliare a Trieste, vi consiglio di rivolgervi a questa: mi sono trovata davvero bene! Sono stata seguita con tanta pazienza e attenzione, e la loro conoscenza delle normative...