Appartamento
Vendita
Vendita Appartamento

Appartamento

Via Marecchiese, 179, Verucchio, Rimini

355.000 €
138
mq
5
Locali
3
Camere
2
Bagni

Recensisci questo Immobile

Devi essere registrato per lasciare una recensione.

Accedi

Nessuna recensione ancora. Sii il primo!

Descrizione

CENTRO di VILLA VERUCCHIO - Immobile moderno e funzionale in consegna a fine 2025.

In elegante complesso residenziale di nuova costruzione, composto da sole 5 unità abitative, proponiamo in vendita spazioso e luminoso appartamento Quadrilocale al piano terra fronte strada dalle ottime metrature con accesso comodo e diretto e ampi spazi esterni pavimentati pertinenziali, ideali per zona relax.

✅ Dettagli Immobile:

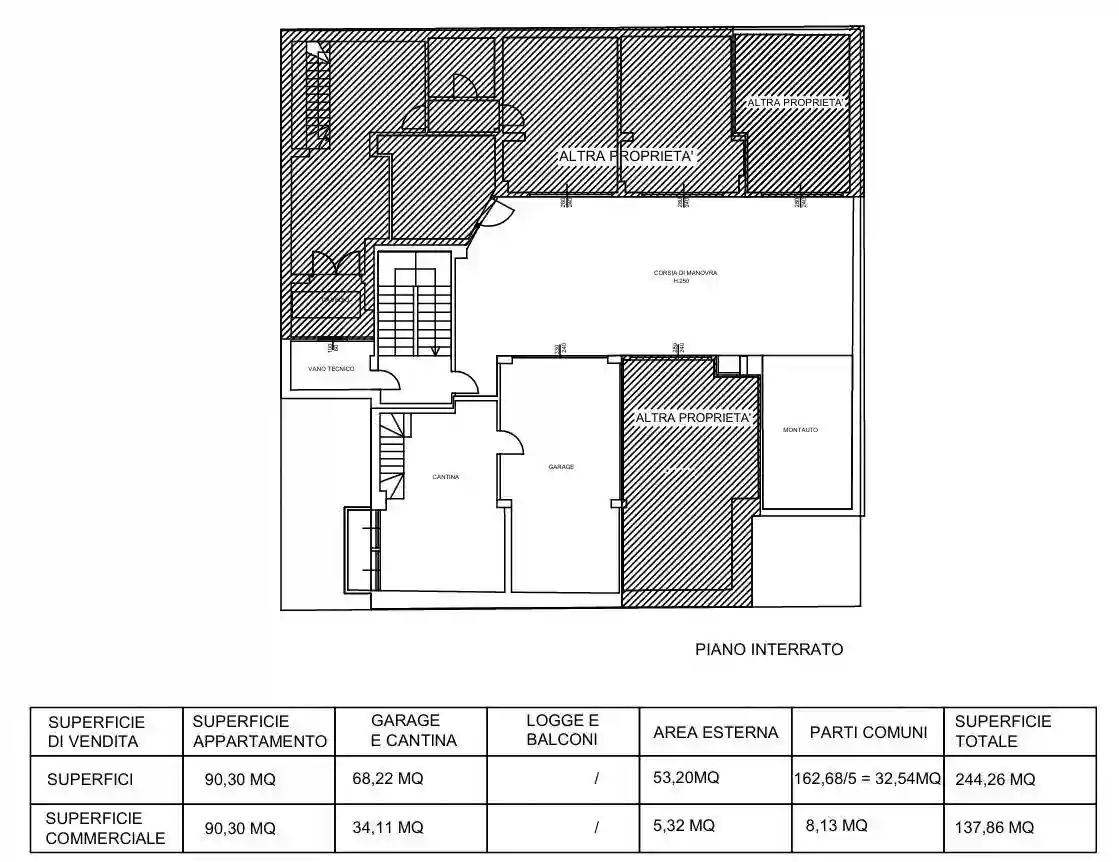
Superficie appartamento: 90,30 mq disposti in ampia e luminosa zona living, 2 camere da letto singole e 1 matrimoniale e due bagni di cui 1 finestrato.

Superficie garage doppio e cantina: 68,22 mq con accesso da scala interna all'appartamento e da montauto.

Area esterna: 53,20 mq a cui si accede sia dalla zona living e dalle camere da letto e sia da ingresso indipendente.

Parti comuni: 32,54 mq.

✔️ Palazzina dotata di pannelli solari termici;
✔️ Riscaldamento a pavimento con pannelli radianti;
✔️ Ventilazione meccanica;
✔️ Predisposizione per pompe di calore e climatizzazione;
✔️ Classe energetica A2, per un elevato risparmio energetico.

Per informazioni e visite:

RIF: 4503
Contattare Marco Rocchi al 345 059 0584 oppure l'agenzia al 0541 626435

Caratteristiche

Piano T
Ascensore No
Stato Nuovo / In costruzione

Posizione

Referente

A Immobiliare S.R.L.S.

Storico

Pubblicato 12 Jan 2026
Aggiornato 18 Feb 2026
Sul mercato 38 giorni
ID Annuncio 122096256

Recensioni

Vedi tutte
K

Katia Laino

4.7

Durante il processo mi sono sentita molto supportata e presa per mano, grazie alla serietà e alla cortesia dell’agenzia. Mi sono trovata subito a mio agio e hanno seguito ogni passo con professionalit...