Appartamento
Vendita
Vendita Appartamento

Appartamento

Via Marecchiese, 189, Verucchio, Rimini

355.000 €
151
mq
4
Locali
2
Camere
2
Bagni

Recensisci questo Immobile

Devi essere registrato per lasciare una recensione.

Accedi

Nessuna recensione ancora. Sii il primo!

Descrizione

CENTRO di VILLA VERUCCHIO - Immobile moderno e funzionale in consegna a fine 2025.

In elegante complesso residenziale di nuova costruzione, composto da sole 5 unità abitative, proponiamo in vendita spazioso e luminoso appartamento Trilocale al piano primo e disposto su 2 livelli dalle ottime metrature e fornito di ampi terrazzi ideali per zona relax.

✅ Dettagli Immobile:

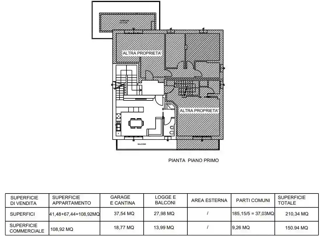
Superficie appartamento: 108,92 mq disposti in ampia e luminosa zona living al piano primo da cui si accede ad ampio balcone e da 1 bagno finestrato mentre al piano secondo 2 camere da letto matrimoniali entrambe fornite di ampi terrazzi. Completa la soluzione 1 bagno finestrato.

Superficie garage e cantina: 37,54 mq con accesso da scala interna condominiale e da montauto.

Terrazzi: 27,98 mq a cui si accede da ampia porta finestra delle camere da letto

Parti comuni: 37,03 mq.

✔️ Palazzina dotata di pannelli solari termici;
✔️ Riscaldamento a pavimento con pannelli radianti;
✔️ Ventilazione meccanica;
✔️ Predisposizione per pompe di calore e climatizzazione;
✔️ Classe energetica A2, per un elevato risparmio energetico.

Per informazioni e visite:

RIF: 3693-1
Contattare Marco Rocchi al 345 059 0584 oppure l'agenzia al 0541 626435

Caratteristiche

Piano 1
Ascensore No
Stato Nuovo / In costruzione

Posizione

Referente

A Immobiliare S.R.L.S.

Storico

Pubblicato 12 Jan 2026
Aggiornato 18 Feb 2026
Sul mercato 38 giorni
ID Annuncio 122096266

Recensioni

Vedi tutte
K

Katia Laino

4.7

Durante il processo mi sono sentita molto supportata e presa per mano, grazie alla serietà e alla cortesia dell’agenzia. Mi sono trovata subito a mio agio e hanno seguito ogni passo con professionalit...