Indietro
Vendita Palazzo - Edificio

Palazzo - Edificio

Via-Rue Viseran 1, Aosta, Aosta

750.000 €
800
mq
5+
Locali
3+
Bagni

Recensisci questo Immobile

Devi essere registrato per lasciare una recensione.

Accedi

Nessuna recensione ancora. Sii il primo!

Descrizione

Rif: VIS1 - La Tempocasa di Aosta propone in esclusiva la vendita di un’ampia struttura ricettiva in posizione strategica e centrale, a pochi passi dal cuore storico di Aosta e situata in una zona ad alto passaggio.
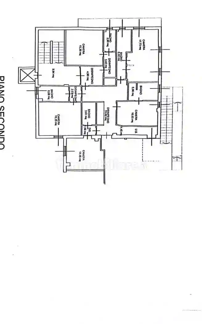
L’immobile si sviluppa su quattro piani ed è composto da 23 camere, tutte dotate di:infissi recentemente sostituiti,bagno privato,armadi a muro,balconi.

A completare la proprietà:
un ampio spazio esterno ideale per realizzare un’area colazioni o un dehors per i pasti,
un sottotetto di oltre 25 mq utilizzabile come deposito, area tecnica o eventualmente convertibile.

Punti di forza dell’investimento: Posizione centrale, ideale sia per turismo che per business travel. Struttura già predisposta all’attività ricettiva.nPossibilità di personalizzazione e sviluppo di ulteriori servizi.

Rendita stimata:Con un’occupazione media del 60–70% e una tariffa media di 70–90€ a notte per camera, l’immobile può generare una rendita annua potenziale tra i 300.000€ e i 400.000€ lordi, con ampi margini di crescita grazie alla posizione e alla capacità ricettiva.

CONTATTACI PER AVERE MAGGIORI INFORMAZIONI E ULTERIORE DOCUMENTAZIONE !

Caratteristiche

Piano T

Servizi e accessori

Accesso per disabili Balcone Esposizione doppia Impianto di allarme Infissi esterni in doppio vetro / PVC

Posizione

Referente

Tempocasa Aosta

Storico

Pubblicato 14 Jan 2026
Aggiornato 24 Feb 2026
Sul mercato 41 giorni
ID Annuncio 122183844

Recensioni

Vedi tutte
A

Aldo Guglielmi

5.0

Stavo cercando un magazzino affidabile e facilmente gestibile per la mia attività, e ho trovato in questa agenzia un supporto competente e professionale. Sono stato molto soddisfatto del seguito ricev...