Vendita Appartamento

Appartamento

Via don Renzo Cassoni, 6, Trento, Trento

Prezzo
61
mq
2
Locali
1
Camere
1
Bagni

Recensisci questo Immobile

Devi essere registrato per lasciare una recensione.

Accedi

Nessuna recensione ancora. Sii il primo!

Descrizione

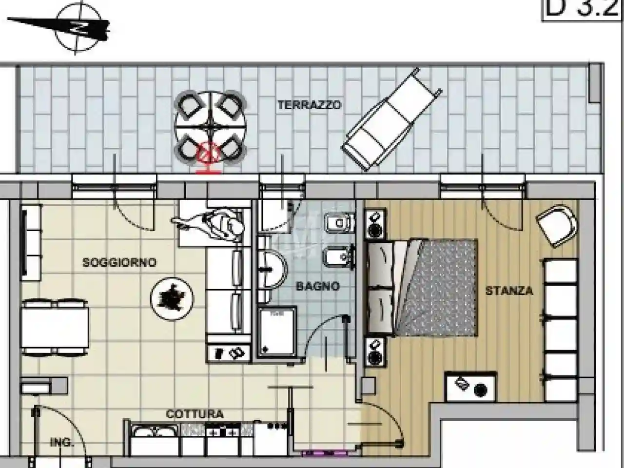
**Trento Nord - Nuova Costruzione Consegna novembre 2025**
*ESCLUSIVO Appartamento al Piano Terzo con Vista Panoramica con esposizione est*
Situato nella zona in rapida crescita di Trento Nord, proponiamo in vendita un meraviglioso appartamento in costruzione . Questa è un'opportunità unica per chi desidera una casa moderna, ecologica e personalizzabile.
**Caratteristiche principali:**
- Ingresso spazioso
- Soggiorno luminoso con cucina a vista come da proposte allegate.
- Camera da letto matrimoniale
- bagno finestrato con box doccia
- Disimpegno
- Terrazzo da 19mq esposto a est con vista panoramica
**Optional aggiuntivi:**
- Garage disponibile con l'acquisto separato e recupero fiscale del 30%
**Caratteristiche ecologiche ed innovative:**
- Pannelli solari
- Pannelli fotovoltaici
- Cappotto termico
- Riscaldamento a pavimento
**Impianti moderni:**
- Videocitofono
- Predisposizione per centralina domotica
- Predisposizione per impianto fibra ottica
- Predisposizione per impianto di raffrescamento
**Possibilità di personalizzazione:**
- Gli acquirenti hanno la possibilità di personalizzare gli interni in base ai propri gusti, garantendo una casa su misura da capitolato.
Non lasciarti sfuggire questa straordinaria opportunità di avere una casa all'avanguardia in una delle zone più promettenti e in evoluzione di Trento nord.
Le immagini di rendering degli immobili sono solo a scopo illustrativo.
Per ulteriori informazioni e visite CON ALTRE SOLUZIONI DI ALTRI IMMOBILI DI VARIE TIPOLOGIE NELLA STESSA RESIDENZA.
Info in agenzia. Rif. V854 D 3.2 P3

Caratteristiche

Piano 3
Ascensore Si
Stato Nuovo / In costruzione
Riscaldamento Centralizzato, a pavimento, alimentato a fotovoltaico

Servizi e accessori

Esposizione esterna Fibra ottica Impianto tv centralizzato Infissi esterni in triplo vetro / PVC Porta blindata VideoCitofono

Posizione

Zona: Gardolo (Trento Nord)

Referente

Mondo Casa srl

Storico

Pubblicato 14 Jan 2026
Disattivato 07 Mar 2026
Sul mercato 127 giorni
ID Annuncio 122891926

Recensioni

Vedi tutte
P

Pietro Pellicano

4.7

Appena sono entrato in agenzia sono stato colpito dall’attenzione che hanno riservato alle mie esigenze, ascoltando tutto con molta cura. Sono stato molto soddisfatto perché hanno trovato rapidamente...

M

Michela Colantuono

4.7

Come ho avuto brutte esperienze con altre agenzie che sembravano frettolose, questa volta ho trovato un approccio diverso: sono stata seguita con pazienza e grande attenzione alla documentazione, il c...

P

Pina Farina

4.3

Se state cercando un'agenzia immobiliare affidabile, consiglio di sceglierne una che metta al primo posto trasparenza e attenzione ai dettagli. Mi sono trovata davvero bene: sono stata seguita con cal...