Vendita Villa

Villa

Manduria, Taranto

118.000 €
100
mq
2
Locali
1
Camere
1
Bagni

Recensisci questo Immobile

Devi essere registrato per lasciare una recensione.

Accedi

Nessuna recensione ancora. Sii il primo!

Descrizione

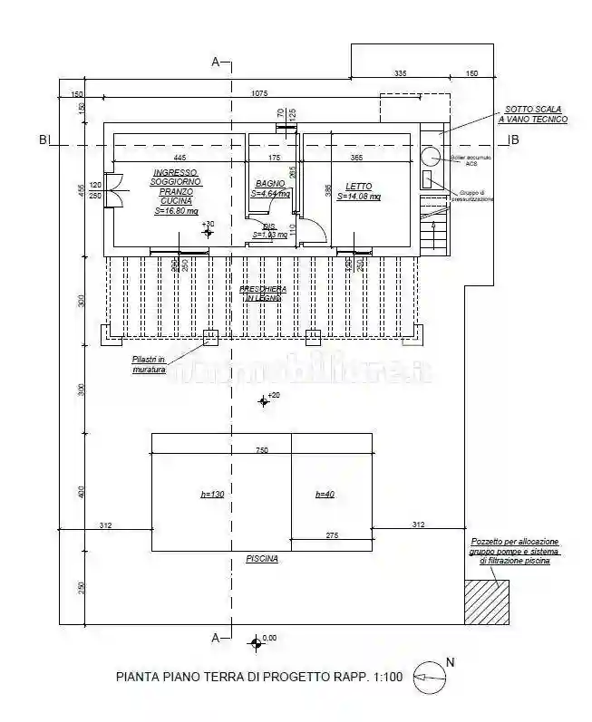
A soli 750 metri dalla costa di Torre Borraco, l'Agenzia Immobiliari Riunite Di Nanna propone in vendita una villa allo stato rustico che si trova all'interno di un ampio terreno recintato di circa 5.000 mq.

L’abitazione, tutta su un piano, è di 50 mq ed è composta da: ampio ingresso-soggiorno con angolo cottura open space, camera da letto, bagno, vano deposito. All'esterno la possibilità di una comoda e ampia freschiera in legno.

Lo stato rustico ti offre la possibilità di personalizzare ogni dettaglio, dal layout interno fino agli spazi esterni.

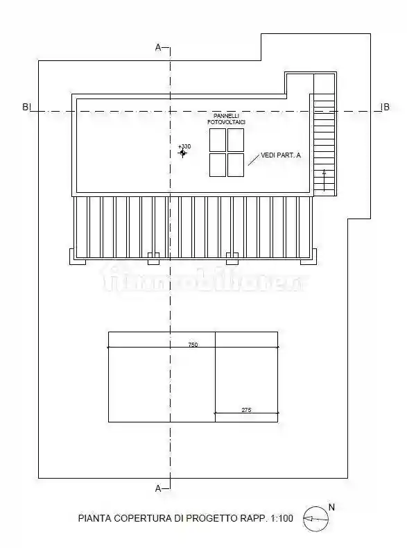
Nel progetto è già stata autorizzata la realizzazione di una piscina.

Nel prezzo di vendita è inclusa la realizzazione della cisterna, della fossa imhoff e il pagamento degli oneri di urbanizzazione e di progettazione.

Un’opportunità rara per chi sogna di vivere a stretto contatto con la natura, senza rinunciare alla vicinanza al mare. Una casa che aspetta solo di essere trasformata nel tuo rifugio personale.

Contattaci al più presto per ulteriori informazioni o per una visita!

Caratteristiche

Piano T
Stato Nuovo / In costruzione

Servizi e accessori

Esposizione doppia

Posizione

Referente

Immobiliari Riunite Agenzia Di Nanna

Storico

Pubblicato 14 Jan 2026
Aggiornato 25 Feb 2026
Sul mercato 42 giorni
ID Annuncio 123183161

Recensioni

Vedi tutte
G

Gennaro Colella

4.7

Ricordo ancora il momento in cui ho concluso con successo la vendita del mio locale commerciale, un'esperienza davvero positiva e stimolante. Ho trovato un’agenzia che mi ha seguito passo dopo passo c...

E

Eugenio Cherchi

4.7

Ho trovato l'appartamento perfetto per la mia famiglia grazie a questa agenzia, che mi ha seguito passo dopo passo. Durante la trattativa sono stato un po’ stressato, ma loro hanno gestito tutto con g...

A

Alberto Carta

4.7

Ho trovato il terreno ideale per costruire il mio progetto e sono davvero entusiasta del risultato. L'agenzia si è dimostrata onesta e trasparente in tutte le valutazioni, facendomi sentire sicuro e s...

S

Silvano Natale

4.7

Ho avuto un'esperienza davvero positiva con questa agenzia immobiliare a Adelfia. Sono stato molto soddisfatto perché hanno valutato il mio locale commerciale con onestà e trasparenza, senza promesse...

M

Mirko Cannavaro

4.7

Se stai cercando un’agenzia immobiliare seria e competente, ti consiglio di affidarti a chi conosce bene il mercato locale come questa. Ho trovato un appartamento più grande per la mia famiglia grazie...