Villa
Vendita
Vendita Villa Luxury

Villa

Via del Lavoro, Gallarate, Varese

495.000 €
135
mq
4
Locali
3
Camere
2
Bagni

Recensisci questo Immobile

Devi essere registrato per lasciare una recensione.

Accedi

Nessuna recensione ancora. Sii il primo!

Descrizione

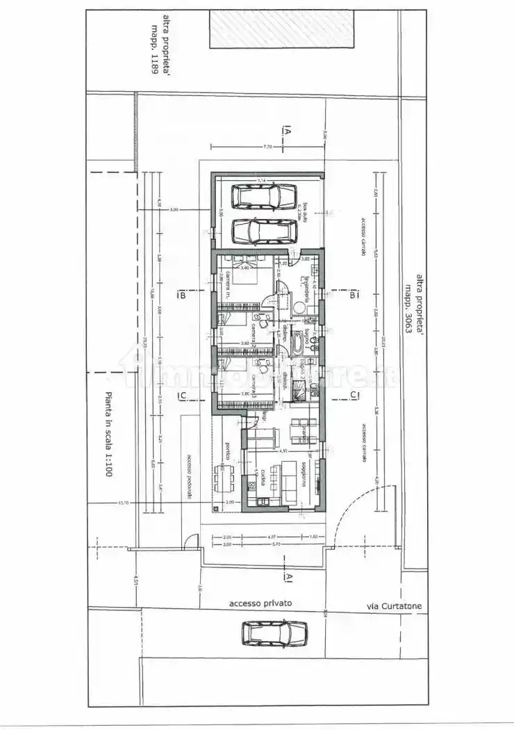
GALLARATE CASCINETTA in zona tranquilla nel verde, comoda per autostrade e servita di tutto, sono in fase di realizzazione due ville singole completamente indipendenti di cui una già venduta, con le più MODERNE TECNOLOGIE : pannelli fotovoltaici, riscaldamento a pavimento, pompa di calore, serramenti interni in Pvc, tapparelle motorizzate in alluminio, cappotto termico esterno, ventilazione meccanica che renderà l'aria pulita all'interno della casa, videocitofono antifurto ed antenna. La villa ha un giardino di mq.625 con ingresso carraio e pedonale tutta su un unico piano, composta da un ampio soggiorno pranzo con angolo cottura che si affacciano sul portico esterno, disimpegno, camera matrimoniale, due altre camere, bagno, locale centrale termica/lavanderia, mq.115 . Completa la proprietà box doppio in larghezza di mq.40 con basculante motorizzata. In questa fase è possibile effettuare eventuali varianti adattandole alle vostre esigenze. CONTATTATECI PER MAGGIORI INFORMAZIONI O ANCOR MEGLIO FISSARE UN APPUNTAMENTO IN CANTIERE. Cl. A4 - I.p.e 35,00 . € 495.000,00

Caratteristiche

Piano Piano terra
Ascensore No
Stato Nuovo / In costruzione
Riscaldamento Autonomo
Garage 2 in box privato/box in garage, 2 in parcheggio/garage comune

Servizi e accessori

Cancello elettrico Videocitofono Porta blindata Terrazzo Impianto tv con parabola satellitare Giardino privato Infissi esterni in doppio vetro / pvc Esposizione doppia

Posizione

Zona: Cascinetta (Cascinetta, Caiello)

Referente

Monica Martignoni

Storico

Pubblicato 31 Dec 2025
Aggiornato 15 Feb 2026
Sul mercato 52 giorni
ID Annuncio 123201723

Recensioni

Vedi tutte
A

Arianna Mariani

4.7

Ho trovato l’appartamento perfetto per i miei figli grazie a un’agenzia molto professionale e disponibile. Mi ha aiutata con grande flessibilità negli orari e ha gestito la trattativa con competenza,...

J

Jessica Laterza

4.3

Durante tutto il processo mi sono sentita molto supportata e tranquilla, grazie alla pazienza e alla disponibilità dell’agenzia. Avevo tante domande e un’idea precisa di quello che cercavo, ma sono st...