Vendita Villa Luxury

Villa

Via Angelo Pegoraro, Gallarate, Varese

Prezzo
160
mq
3
Locali
3
Camere
2
Bagni

Recensisci questo Immobile

Devi essere registrato per lasciare una recensione.

Accedi

Nessuna recensione ancora. Sii il primo!

Descrizione

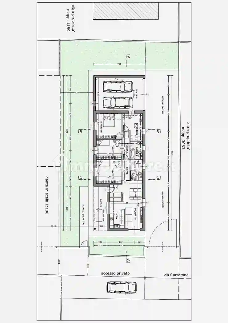
GALLARATE comoda al centro e per l'autostrada, in zona tranquilla caratterizzata dalla presenza di ville, ma ben servita, nuova villa singola in costruzione personalizzabile totalmente. Caratterizzata dall'utilizzo di impianti di ultima generazione quali pannelli fotovoltaici, riscaldamento a pavimento, pompa di calore, serramenti interni in Pvc, tapparelle motorizzate in alluminio, cappotto termico esterno, ventilazione meccanica per un ricambio d'aria costante all'interno della casa, videocitofono, predisposizione antifurto, l'immobile si sviluppa su unico piano di c. ca 135 mq. La villa con un giardino di mq. 625 ha ingresso nell'ampia zona living composta da soggiorno pranzo con angolo cottura che si affacciano sul portico esterno, disimpegno, camera padronale, due ulteriori camere di buobe metrature, 2 servizi, lavanderia da cui si ha accesso diretto al box doppio in larghezza con basculante motorizzata. Perfetta per chi cerca una soluzione di ultima generazione evuole personalizzare totalmente il proprio immobile! Consegne in 6 mesi!

Caratteristiche

Piano T
Ascensore No
Stato Nuovo / In costruzione
Riscaldamento Autonomo, a pavimento, alimentato a pompa di calore

Servizi e accessori

Cancello elettrico Esposizione doppia Impianto tv singolo Infissi esterni in triplo vetro / PVC Porta blindata VideoCitofono

Posizione

Zona: Cascinetta (Cascinetta, Caiello)

Referente

Frontini Immobiliare

Storico

Pubblicato 07 Mar 2026
Aggiornato 21 May 2026
Sul mercato 75 giorni
ID Annuncio 127300077

Recensioni

Vedi tutte
V

Virginia Timpano

4.7

Dopo aver avuto brutte esperienze con altre agenzie, questa volta sono stata davvero sorpresa positivamente. Mi hanno seguita con professionalità e cortesia, e ogni appuntamento è stato sempre puntual...

L

Lisa Mazzoni

4.3

Se cercate un’agenzia immobiliare affidabile, vi consiglio di rivolgervi a questa: sono stata davvero soddisfatta del supporto e della trasparenza dimostrata fin dal primo momento. Mi hanno aiutata pa...

R

Rita Filippi

4.3

Grazie di cuore! Mi sono trovata davvero bene con questa agenzia, che è stata sempre molto affidabile e chiara in tutte le spiegazioni. Mi hanno seguita passo passo nella ricerca dell’ufficio perfetto...

E

Emma Leoni

4.3

Ho trovato l’appartamento perfetto per la mia famiglia in crescita grazie a un’agenzia immobiliare a Fagnano Olona, e sono stata davvero felice del supporto che ho ricevuto. Mi sono sentita seguita pa...

O

Ornella Manzoni

4.0

Se cercate un’agenzia immobiliare, consiglio di sceglierne una che sappia ascoltare e spiegare con chiarezza. Sono stata molto contenta di aver trovato questa agenzia a Fagnano Olona, perché mi hanno...