Indietro
Vendita Casa indipendente

Casa indipendente

sp 57, Stintino, Sassari

Prezzo
Ottimo Affare: 66% sotto la media
130
mq
5
Locali
3
Camere
1
Bagni

Recensisci questo Immobile

Devi essere registrato per lasciare una recensione.

Accedi

Nessuna recensione ancora. Sii il primo!

Descrizione

DIMORE ITALIANE INVESTIMENTI IMMOBILIARI VENDE

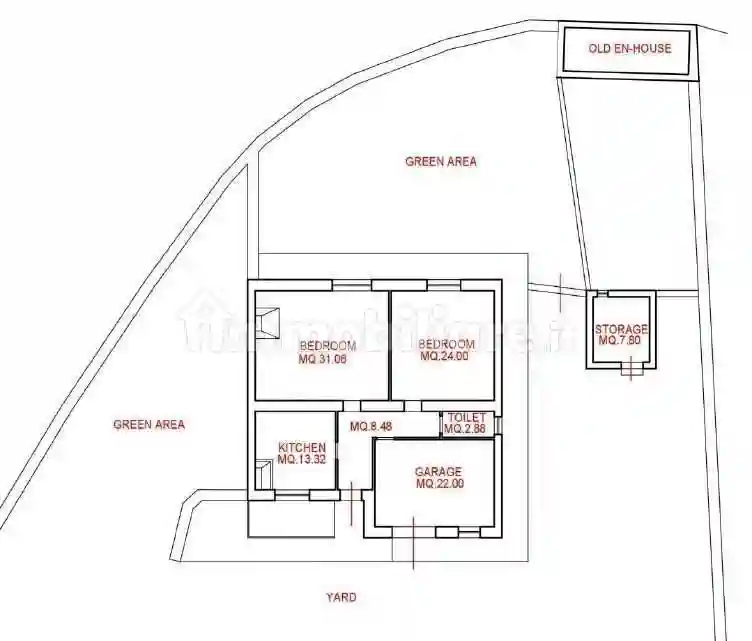
In location di altissimo prestigio a forte vocazione turistica, immersa in uno dei più belli scenari costieri marini apprezzato in tutto il mondo, inserita in contesto unico con macchia mediterranea protetta, a 17 km da Stintino, a 1 km in linea d'aria dalla spiaggia di "Rena Majore" del mare di fuori e a 750 metri in linea d'aria dalla spiaggia di "Lampianu", casa indipendente della superficie di circa 130 mq, interamente dislocata al piano terra, da ristrutturare e attualmente costituita da 3 camere, bagno, disimpegno e garage, oltre a pollaio e magazzino, il tutto perfettamente autorizzato e regolarmente autorizzato, e viene venduta con 5000 mq di terreno pianeggiante. La casa dispone di acqua indipendente (pozzo trivellato mt.40.00 di profondità, autorizzato dal Genio Civile) con elettropompa sommersa e impianto autoclave funzionante, allaccio attivo alla rete elettrica e linea telefonica attiva. POSSIBILITA’ DI REALIZZAZIONE PISCINA, PERGOLATI E TETTOIE, o di modificarne la diposizione interna o, ancora, di suddivisione in 2 unità abitative secondo le ipotesi progettuali indicate in foto. Soluzione unica ed introvabile. Ideale per gli amanti della natura e della privacy.
Classe energetica G

Invitiamo la Gentile Clientela, preventivamente alla visita, a contattare l' Agenzia DIMORE ITALIANE INVESTIMENTI IMMOBILIARI, lasciando il vostro recapito (nominativo e numero di telefono). Un nostro operatore vi ricontatterà il prima possibile per la verifica della disponibilità del prodotto e della sua precisa corrispondenza alla descrizione dell'annuncio. La visione degli immobili verrà effettuata previo sottoscrizione del rapporto di visita ed autorizzazione al trattamento dei dati personali. Il presente annuncio non costituisce elemento contrattuale.

DIMORE ITALIANE INVESTIMENTI IMMOBILIARI E' UN MARCHIO DI PROPRIETA' DI TIZIANO SATTA REAL ESTATE GROUP. TUTTI I DIRITTI RISERVATI.

Caratteristiche

Piano T
Ascensore No
Stato Da ristrutturare

Posizione

Referente

Tiziano Satta Real Estate Group

Storico

Pubblicato 21 Jan 2026
Disattivato 17 Mar 2026
Sul mercato 79 giorni
ID Annuncio 123504453

Recensioni

Vedi tutte
S

Stefania Grande

4.3

Grazie di cuore per avermi seguita con tanta pazienza e chiarezza! Sono stata davvero soddisfatta del supporto ricevuto, perché mi avete aiutata a trovare l'appartamento perfetto per la crescita della...