Indietro
Palazzo - Edificio in Vendita
Vendita
Vendita Palazzo - Edificio

Palazzo - Edificio in Vendita

Via della Battaglia, Cuneo, Cuneo

490.000 €
Ottimo Affare: 61% sotto la media
800
mq
5+
Locali
3+
Bagni

Recensisci questo Immobile

Devi essere registrato per lasciare una recensione.

Accedi

Nessuna recensione ancora. Sii il primo!

Descrizione

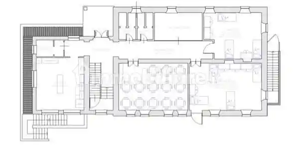
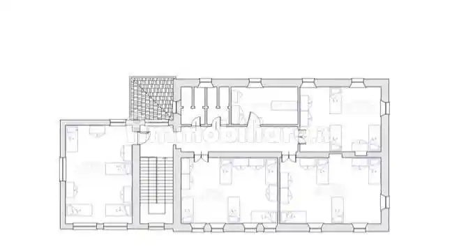
PRIMI DINTORNI DI CUNEO. Via della Battaglia. In zona centralissima, disponiamo di edificio da cielo a terra indipendente su 4 lati, sviluppato su 2 livelli più piano interrato per un totale di circa 800 Mq. Giardino e cortile circostante di circa 1.500 Mq. con accesso indipendente. Possibilità di ricavare da 5 ad 8 unità immobiliari con box auto. Tetto completamente rifatto recentemente a nuovo. € 490.000. Ce G – Ipe 320,00. Rif. R/3

Caratteristiche

Piano 3 piani: Interrato (-1), Piano terra, 1°
Riscaldamento Autonomo
Garage 10 in parcheggio/garage comune

Servizi e accessori

Infissi esterni in vetro / legno Esposizione doppia

Posizione

Zona: Madonna dell'Olmo (Madonna dell'Olmo, Ronchi)

Referente

Giovanni Garbelli

Storico

Pubblicato 30 Dec 2025
Aggiornato 15 Feb 2026
Sul mercato 52 giorni
ID Annuncio 123579233

Recensioni

Vedi tutte
N

Nicola Timpano

4.7

Durante il processo mi sono sentito tranquillo e sicuro, grazie alla puntualità degli appuntamenti e alla pazienza dimostrata dall'agente. Ho trovato subito il magazzino perfetto per la mia azienda e...