Indietro
Vendita Villetta a schiera

Villetta a schiera

Via Pistoiese, 185, Signa, Firenze

440.000 €
136
mq
4
Locali
2
Camere
2
Bagni

Recensisci questo Immobile

Devi essere registrato per lasciare una recensione.

Accedi

Nessuna recensione ancora. Sii il primo!

Descrizione

In zona residenziale tranquilla e ben servita, proponiamo in vendita una villetta a schiera di nuova costruzione, caratterizzata da spazi moderni e funzionali, disposta su tre livelli.
Al piano terra si trovano un ampio box garage, un locale tecnico, un portico coperto di circa 16 mq, ideale per pranzi e cene all’aperto, oltre a due posti auto di proprietà e un’area esterna di circa 140 mq complessivi, comprensiva di giardino privato.
Il primo piano, è composto da un luminoso soggiorno con zona pranzo, angolo cottura, camera singola, bagno finestrato e comodo ripostiglio.
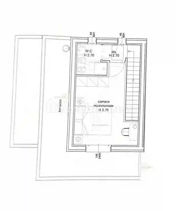
Al secondo piano si sviluppa la zona notte padronale, con una spaziosa camera matrimoniale, bagno privato e terrazzo angolare su due lati, perfetto per momenti di relax. Completa il piano una soffitta uso stoccaggio di circa 30 mq, ideale come spazio aggiuntivo.
Soluzione ideale per chi cerca una casa moderna, con rifiniture di pregio ed efficienza energetica, con spazi ben distribuiti.
Se desiderate ulteriori informazioni relativamente all'immobile rimaniamo a vostra disposizione.
Potete contattarci telefonicamente per fissare un appuntamento e visionare l’immobile.
Real Home Toscana - 3762135753

Caratteristiche

Ascensore No
Stato Nuovo / In costruzione
Riscaldamento Autonomo, a pavimento, alimentato a pompa di calore

Servizi e accessori

Cancello elettrico Esposizione interna Fibra ottica Impianto tv singolo Infissi esterni in doppio vetro / PVC Porta blindata VideoCitofono

Posizione

Referente

Real Home s.a.s.

Storico

Pubblicato 14 Jan 2026
Aggiornato 26 Feb 2026
Sul mercato 43 giorni
ID Annuncio 123719321

Recensioni

Vedi tutte
L

Livio Natale

5.0

Quando sono entrato in agenzia, sono rimasto colpito dalla vasta scelta di magazzini disponibili, sembrava quasi impossibile trovare qualcosa che facesse al caso mio. Mi sono sentito subito seguito e...

A

Antonio Rossi

5.0

Prima di incontrarli, avevo avuto diverse esperienze con altre agenzie che mi avevano lasciato un po' deluso, ma questa è stata davvero diversa. Mi sono sentito ascoltato e sempre seguito passo passo,...

K

Katia De Luca

4.7

Un grazie di cuore per avermi aiutato a trovare l'investimento immobiliare perfetto! Mi sono sentita seguita passo dopo passo con grande cura dei dettagli e una disponibilità davvero speciale, che mi...

A

Arianna Ferrante

4.3

Ho trovato l’agenzia molto competente e professionale. Sono rimasta colpita dalla loro tempestività nelle risposte e dalla conoscenza approfondita del mercato immobiliare di Prato. Mi hanno seguita pa...