Indietro
Vendita Villetta a schiera

Villetta a schiera

Via Pistoiese, 185, Signa, Firenze

Prezzo
143
mq
5
Locali
3
Camere
2
Bagni

Recensisci questo Immobile

Devi essere registrato per lasciare una recensione.

Accedi

Nessuna recensione ancora. Sii il primo!

Descrizione

In zona residenziale tranquilla e ben servita di Sant'Angelo, proponiamo in vendita una villetta a schiera di nuova costruzione, realizzata con materiali di pregio e tecnologie di ultima generazione per garantire il massimo dell’efficienza energetica.
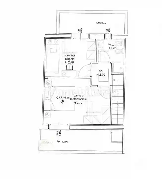
L’immobile si sviluppa su tre livelli: al piano terra si accede attraverso un ampio porticato che conduce al box garage, affiancato da un comodo locale tecnico.
Salendo al primo troviamo la zona giorno, composta da un ingresso che apre su uno spazioso e luminoso soggiorno, zona pranzo, angolo cottura, una camera singola e un bagno.
Attraverso una scala interna si accede al secondo piano, dove si sviluppa la zona notte con una camera matrimoniale di generose dimensioni, una seconda camera singola, entrambe godono di una comoda terrazza abitabile ed il bagno a servizio delle due camere.
La proprietà è completata da uno spazio esterno di circa 120 mq, in parte pavimentato, e da due posti auto privati.
Una soluzione moderna, efficiente e confortevole, ideale per chi cerca qualità e funzionalità in una posizione strategica.
Se desiderate ulteriori informazioni relativamente all'immobile rimaniamo a vostra disposizione.
Potete contattarci telefonicamente per fissare un appuntamento e visionare l’immobile.
Real Home Toscana - 3762135753

Caratteristiche

Ascensore No
Stato Nuovo / In costruzione
Riscaldamento Autonomo, a pavimento, alimentato a pompa di calore

Servizi e accessori

Cancello elettrico Esposizione doppia Fibra ottica Impianto tv singolo Infissi esterni in doppio vetro / PVC Porta blindata VideoCitofono

Posizione

Referente

Real Home s.a.s.

Storico

Pubblicato 14 Jan 2026
Aggiornato 31 May 2026
Sul mercato 137 giorni
ID Annuncio 123730949

Recensioni

Vedi tutte
L

Livio Natale

5.0

Quando sono entrato in agenzia, sono rimasto colpito dalla vasta scelta di magazzini disponibili, sembrava quasi impossibile trovare qualcosa che facesse al caso mio. Mi sono sentito subito seguito e...

A

Antonio Rossi

5.0

Prima di incontrarli, avevo avuto diverse esperienze con altre agenzie che mi avevano lasciato un po' deluso, ma questa è stata davvero diversa. Mi sono sentito ascoltato e sempre seguito passo passo,...

K

Katia De Luca

4.7

Un grazie di cuore per avermi aiutato a trovare l'investimento immobiliare perfetto! Mi sono sentita seguita passo dopo passo con grande cura dei dettagli e una disponibilità davvero speciale, che mi...

A

Arianna Ferrante

4.3

Ho trovato l’agenzia molto competente e professionale. Sono rimasta colpita dalla loro tempestività nelle risposte e dalla conoscenza approfondita del mercato immobiliare di Prato. Mi hanno seguita pa...