Indietro
Palazzo - Edificio
Vendita
Vendita Palazzo - Edificio

Palazzo - Edificio

Gropparello, Piacenza

3.500.000 €
1100
mq
5+
Locali
3+
Bagni

Recensisci questo Immobile

Devi essere registrato per lasciare una recensione.

Accedi

Nessuna recensione ancora. Sii il primo!

Descrizione

Castello di Montechino: Un'autentica dimora medievale nei Colli Piacentini

Il Castello di Montechino, edificato nel XII secolo, domina il Monte Occhino a 515 m di altitudine, tra la Val Riglio e la Val Nure. Antico avamposto lungo la Via Francigena e residenza nei secoli di famiglie nobili quali i Confalonieri, i Nicelli e i Farnese, questo maniero è oggi una residenza privata di rara eleganza, restaurata con cura negli ultimi venticinque anni per mantenere intatta la sua struttura originaria, coniugando il fascino delle storiche dimore toscane e delle maisons provenzali.

Gli spazi del Castello
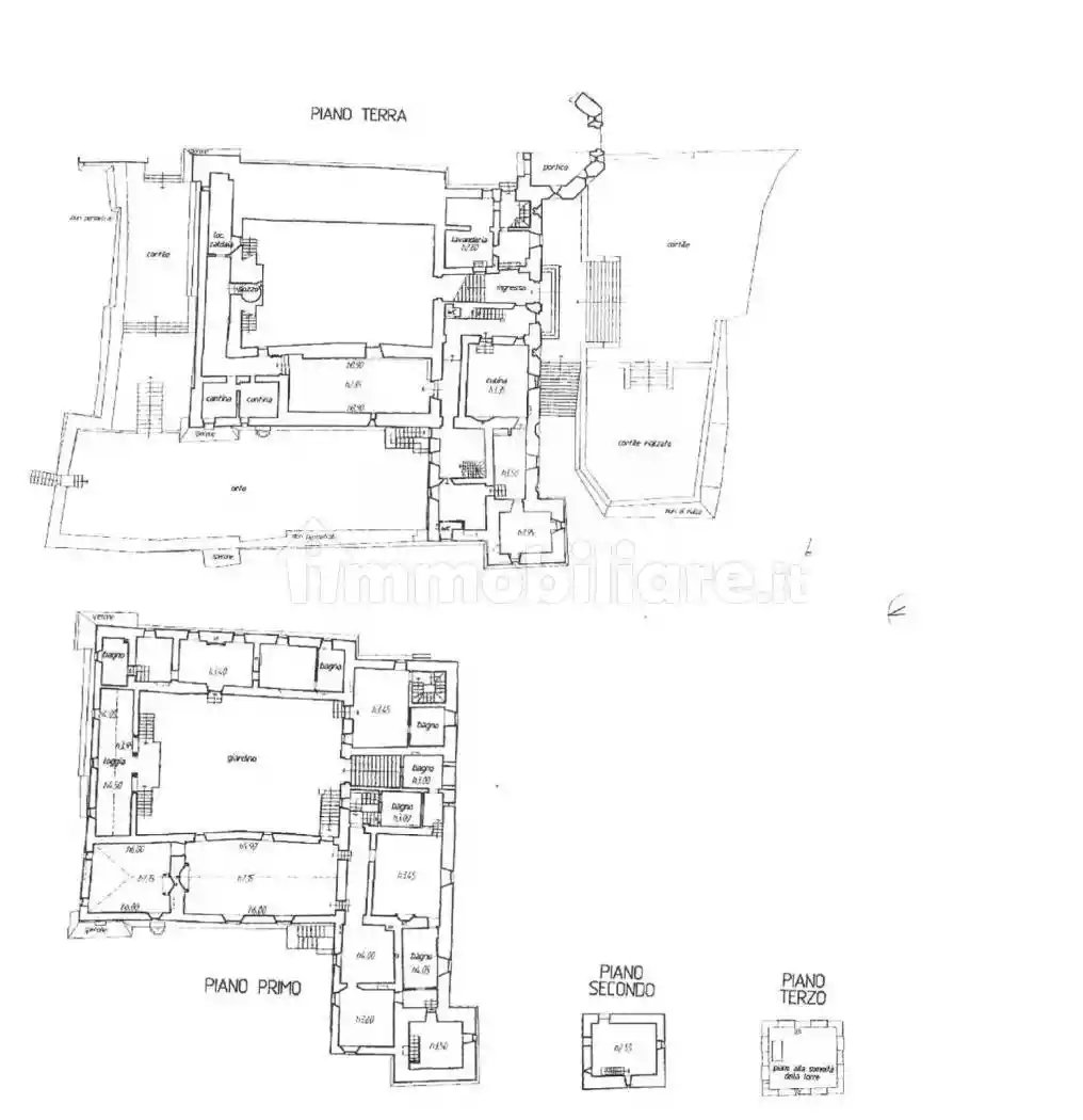
La proprietà si sviluppa su circa 1.100 mq distribuiti su più livelli:
Piano terra: Un viale alberato conduce al cancello principale e all'ingresso del castello. Qui si apre la corte interna, cuore della dimora, dominata da un ulivo secolare. Dal cortile si accede ai grandi ambienti di rappresentanza: i saloni con camini in pietra, pavimenti in parquet e soffitti a travi a vista, ideali come sale di ricevimento. La spaziosa cucina in stile provenzale, con camino e forno a legna, richiama l'atmosfera delle antiche dimore padronali, mentre le cantine voltate in pietra e il pozzo interno completano il piano, conservando l'autenticità medievale.

Piano primo: Al livello superiore si sviluppano ambienti eleganti e accoglienti. La biblioteca-studio, impreziosita da librerie in mogano e camino, si affianca ad altri spazi raffinati come la sala da tè e il salotto privato. La zona notte comprende camere luminose, con soffitti a travi, camini originali e bagni privati, che offrono il massimo comfort pur mantenendo un sapore storico.

Piano secondo: Qui si trovano ulteriori camere e servizi, adatti sia come spazi privati della famiglia sia per ospiti. Alcune stanze offrono vedute spettacolari sulla vallata, rendendo ogni ambiente un luogo di quiete e contemplazione.

La torre: Attraverso una scala in legno si raggiunge la torre panoramica: da qui si domina l'intera vallata con una vista suggestiva che abbraccia colline, boschi e i profili dei colli piacentini.

Gli edifici accessori e il parco
All'interno del parco privato di circa 27 ettari si estendono orti botanici, prati, alberi secolari e boschi.
Due unità indipendenti completano la proprietà: una casa colonica di 300 mq e una residenza di 200 mq destinata ai custodi. All'ingresso del parco si trova inoltre una rimessa, funzionale al servizio della tenuta.

Il castello, interamente restaurato e dotato di impianto di riscaldamento a metano, è utilizzabile in ogni stagione. La sua posizione, a soli 30 minuti dall'autostrada di Piacenza, lo rende facilmente raggiungibile da Milano, Parma e Bologna, mantenendo al contempo un'atmosfera riservata e immersa nella natura.

Caratteristiche

Piano Piano rialzato
Stato Ottimo / Ristrutturato
Riscaldamento Autonomo
Garage 2 in box privato/box in garage, 6 in parcheggio/garage comune

Servizi e accessori

Impianto di allarme Reception Infissi esterni in vetro / legno

Posizione

Storico

Pubblicato 01 Jan 2026
Aggiornato 15 Feb 2026
Sul mercato 50 giorni
ID Annuncio 124000515

Recensioni

Vedi tutte
R

Raffaele Cannavaro

5.0

Quando sono entrato in quella casa, ho subito capito che era quella giusta, grazie alla conoscenza approfondita del mercato locale che aveva l'agente. Mi ha seguito passo dopo passo, rendendo tutto mo...