Vendita Villa

Villa

Giacomo Matteotti, Frassinelle Polesine, Rovigo

180.000 €
107
mq
4
Locali
3
Camere
2
Bagni

Recensisci questo Immobile

Devi essere registrato per lasciare una recensione.

Accedi

Nessuna recensione ancora. Sii il primo!

Descrizione

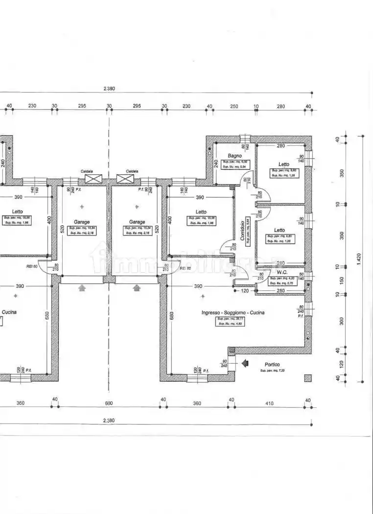
Vendesi villetta accostata da un lato, disposta interamente al piano terra, PREZZO CHIAVI IN MANO, completa di impianti, infissi e pavimenti.
La superficie netta calpestabile è di mq 107 composta da: ingresso su ampio soggiorno con angolo cottura di mq 40, due bagni, 3 camere letto e garage singolo.
Le abitazioni disponibili sono 2 e la zona dove verranno realizzate è vicino ai campi sportivi di Frassinelle Centro, zona comoda all'ingresso Transpolesana e casello autostradale Villamarzana.

CHIAMA E PRENDI APPUNTAMENTO PER UN CONSULTO presso l'agenzia immobiliare assistita dal geometra direttore lavori e impresa costruttrice.

Caratteristiche

Piano Piano terra
Ascensore No
Stato Nuovo / In costruzione
Riscaldamento Autonomo

Posizione

Storico

Pubblicato 01 Jan 2026
Aggiornato 26 Feb 2026
Sul mercato 57 giorni
ID Annuncio 124252093

Recensioni

Vedi tutte
L

Luca Testa

4.3

Appena ho messo piede in agenzia, sono stato colpito dall'attenzione ai dettagli e dalla cordialità del personale. Sono stato stato seguito passo passo in ogni fase della vendita, con grande professio...