Indietro
Vendita Casa indipendente

Casa indipendente

Corso Giacomo Matteotti, Giarre, Catania

Prezzo
260
mq
5+
Locali
3
Camere
3+
Bagni

Recensisci questo Immobile

Devi essere registrato per lasciare una recensione.

Accedi

Nessuna recensione ancora. Sii il primo!

Descrizione

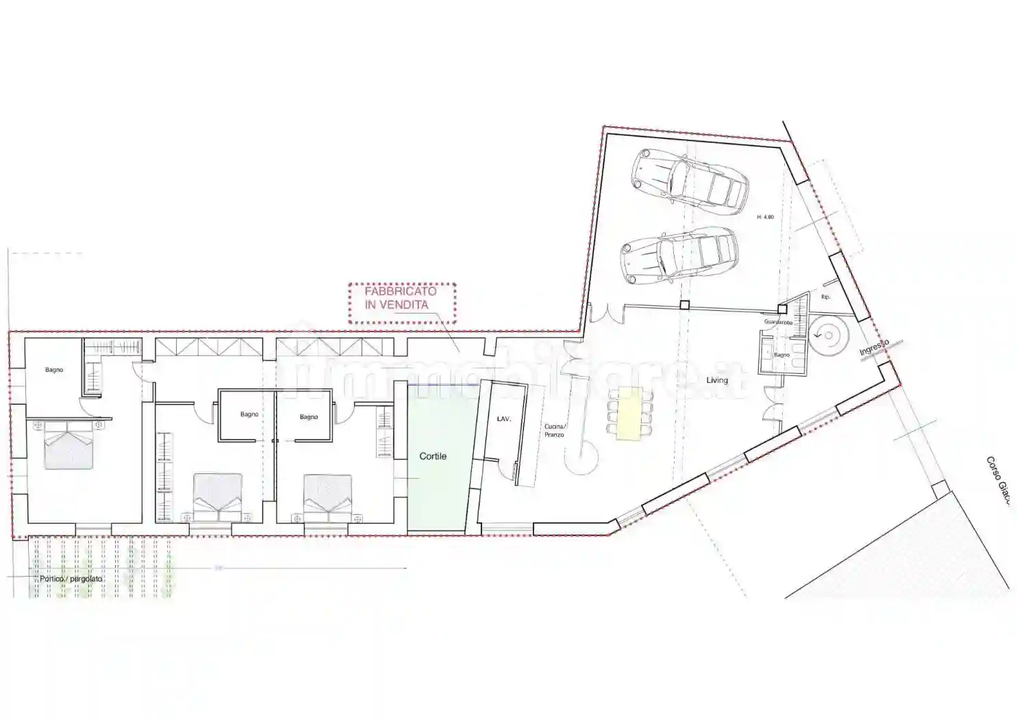
Locale per realizzazione di una Casa indipendente su unico livello a Giarre centro o possibilità anche di poter variare il tutto in una soluzione commerciale o attività come Palestra o di altro genere.
Scopri un'opportunità unica nel cuore di Giarre! Questo ampio locale da ristrutturare per la realizzazione di un eventuale appartamento offre un potenziale illimitato per creare la casa dei tuoi sogni. Situato al piano terra, l'immobile si sviluppa su un unico livello e vanta un grande terrazzo sovrastante di oltre 200 mq, perfetto per godere della vista mozzafiato sull'Etna.
L'interno può essere composto da una luminosa ed ampia zona living formata da salone con cucina a vista, tre camere da letto con bagni privati, una lavanderia e un ripostiglio, oltre ad un cortiletto. Con un garage di circa 45 mq a livello strada, il parcheggio non sarà mai un problema.
La posizione centrale rende questo progetto per l'appartamento ideale sia come residenza principale che come casa vacanza. È possibile averlo chiavi in mano con un sovrapprezzo per i lavori di ristrutturazione, o con il progetto di adeguamento già approvato, o al prezzo pubblicizzato nello stato attuale. Non perdere l'occasione di trasformare questo spazio in un rifugio esclusivo nel centro di Giarre!
Prezzo: € 210.000, 00 nello stato attuale.
Classe energetica: G.

Caratteristiche

Piano T
Ascensore No
Stato Da ristrutturare

Servizi e accessori

Armadio a muro Esposizione doppia Fibra ottica Impianto tv singolo Infissi esterni in vetro / metallo

Posizione

Referente

STUDIOCASA immobiliare di Musumeci Maurizio

Storico

Pubblicato 21 Jan 2026
Aggiornato 26 May 2026
Sul mercato 125 giorni
ID Annuncio 124420973

Recensioni

Vedi tutte
G

Giulia Pandolfi

5.0

Durante il processo di ricerca della nuova casa, mi sono sentita ascoltata e supportata in ogni fase. L'agenzia si è mostrata sempre puntuale negli appuntamenti e molto flessibile negli orari, cosa ch...

N

Nadia Liguori

5.0

Se cercate un'agenzia immobiliare affidabile, consiglio di sceglierne una che sia onesta e professionale. Sono stata molto soddisfatta perché mi hanno seguita passo passo nella ricerca dell’appartamen...

V

Veronica Andreoli

4.3

Se cercate un'agenzia immobiliare affidabile, consiglio di affidarsi a chi è sempre disponibile e puntuale. Mi sono trovata benissimo, sono stata seguita passo passo e aiutata a trovare il bilocale pe...