Appartamento
Vendita
Vendita Appartamento

Appartamento

Via Cirillo Monzani, Formigine, Modena

395.000 €
119
mq
3
Locali
2
Camere
2
Bagni

Recensisci questo Immobile

Devi essere registrato per lasciare una recensione.

Accedi

Nessuna recensione ancora. Sii il primo!

Descrizione

RIF. CAS1 TRILOCALE NUOVA COSTRUZIONE

Proponiamo ULTIMI appartamentI di nuova costruzione con consegna prevista fine 2026, a Casinalbo zona campo sportivo La Bertola.
Appartamenti in classe A4 con finiture di pregio in piccolo contesto di sole 5 unità.

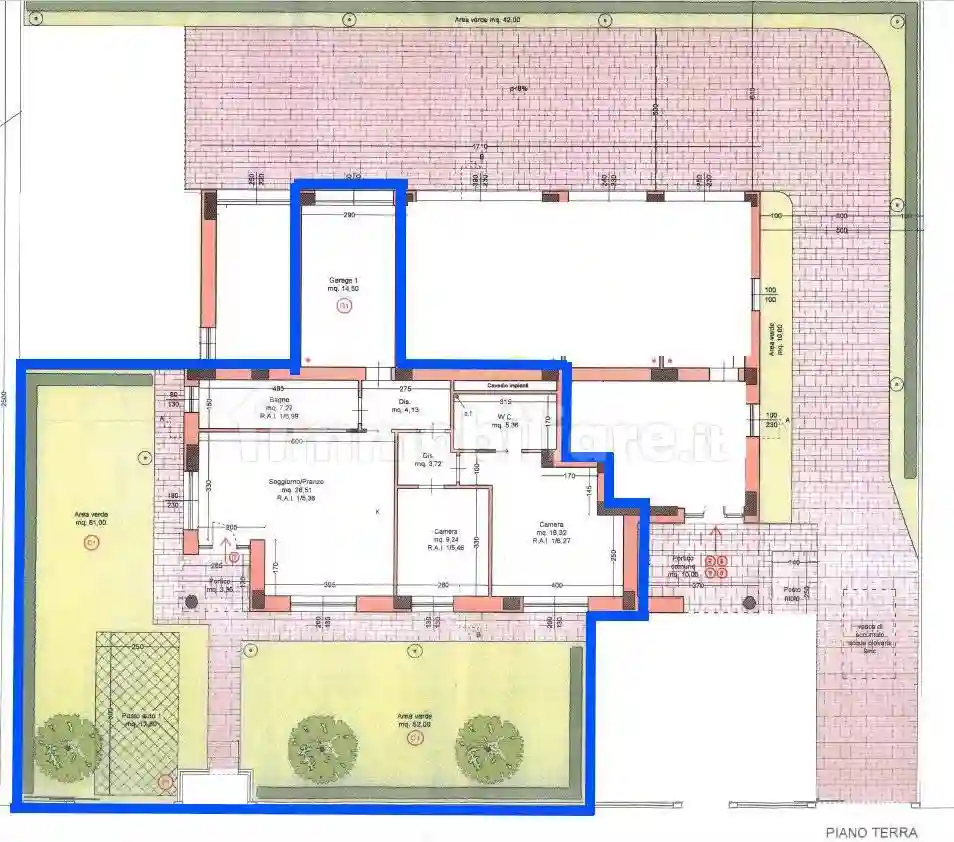
Immobile posto al PIANO TERRA servito da ascensore con ingresso indipendente su ampia zona giorno\pranzo, disimpegno, due bagni, camera matrimoniale e camera singola.
Compreso nel prezzo garage singolo con accesso diretto all'appartamento e posto auto in area cortiliva privata con accesso indipendente.

Prezzo 394.251,00 Euro (esclusa IVA)

PER INFO ANDREA 351 \ 7506616

BCASA SOLUZIONI IMMOBILIARI
Via F. Tamburini 180
Modena

Caratteristiche

Piano T
Ascensore Si
Stato Nuovo / In costruzione
Riscaldamento Centralizzato, a pavimento, alimentato a metano

Servizi e accessori

Cancello elettrico Esposizione doppia Fibra ottica Impianto tv centralizzato Infissi esterni in doppio vetro / PVC Porta blindata VideoCitofono

Posizione

Referente

Bcasa Soluzioni Immobiliari

Storico

Pubblicato 12 Jan 2026
Aggiornato 18 Feb 2026
Sul mercato 39 giorni
ID Annuncio 124617529

Recensioni

Vedi tutte
T

Tullio Zucchi

4.7

Ho scelto questa agenzia perché mi aveva colpito la loro conoscenza delle normative e la disponibilità negli orari, che per me sono fondamentali. Sono stato molto soddisfatto perché hanno capito subit...

V

Vittorio Bernardi

4.3

Ho trovato l'ufficio perfetto per la mia attività grazie alla grande professionalità e attenzione alle mie esigenze dell'agenzia. Sono stato molto soddisfatto del loro serietà e capacità di ascolto, c...

U

Ugo Avallone

4.3

Dopo aver fatto diverse ricerche con altre agenzie, questa volta ho trovato davvero quello che cercavo. Ugo è stato fantastico, sempre disponibile ad accompagnarmi nelle visite e molto competente nell...