Vendita Appartamento

Quadrilocale via Grugnaletto 15, Giulianello, Cori

Via Grugnaletto, Cori, Latina

Prezzo
Ottimo Affare: 31% sotto la media
95
mq
4
Locali
2
Camere
1
Bagni

Recensisci questo Immobile

Devi essere registrato per lasciare una recensione.

Accedi

Nessuna recensione ancora. Sii il primo!

Descrizione

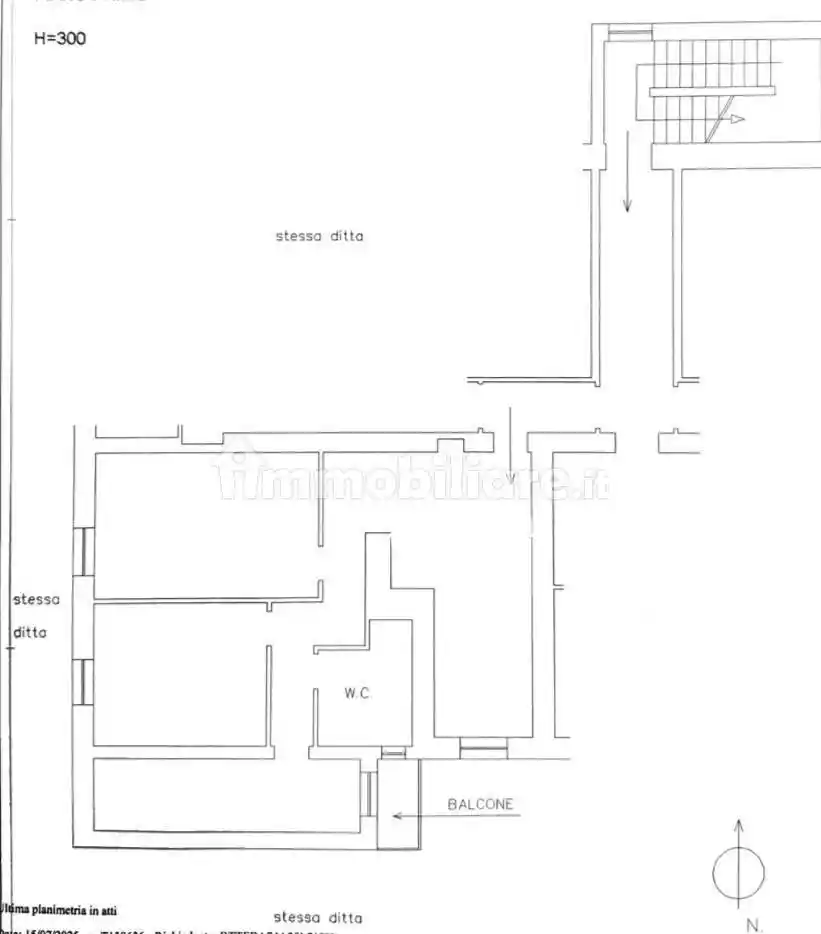
APPARTAMENTO AL PRIMO PIANO DA RIFINIRE – OTTIMA OCCASIONE DA PERSONALIZZARE
In una palazzina situata in via Grugnaletto, in un contesto residenziale tranquillo e ben collegato ai servizi principali, proponiamo in vendita un appartamento al piano primo ideale per chi desidera una soluzione da modellare secondo il proprio gusto. L’immobile si presenta allo stato grezzo, con tracce degli impianti già realizzate, corrugati passati e massetto completato. Una base solida perfetta per chi cerca un’abitazione da personalizzare completamente, scegliendo finiture, materiali e distribuzione degli spazi secondo le proprie esigenze. Distribuzione interna prevista: • Soggiorno–pranzo con angolo cottura • Disimpegno centrale • Due camere da letto luminose • Ampio bagno • Ripostiglio • Stanza pluriuso, ideale come studio, lavanderia o ulteriore spazio di servizio L’appartamento offre ottime potenzialità ed è ideale sia come abitazione principale sia come investimento, grazie alla posizione e alla possibilità di realizzare ambienti moderni e funzionali.

Caratteristiche

Piano
Ascensore No
Stato Da ristrutturare
Riscaldamento Assente

Servizi e accessori

Videocitofono Balcone Infissi esterni in vetro / metallo Esposizione doppia

Posizione

Storico

Pubblicato 28 Dec 2025
Aggiornato 15 Apr 2026
Sul mercato 109 giorni
ID Annuncio 124908837

Recensioni

Vedi tutte
T

Tommaso Costantini

4.3

Prima di questa esperienza, ho trovato difficile orientarmi nel mercato immobiliare, ma questa agenzia ha dimostrato una conoscenza approfondita di Cori e della zona circostante. La loro pazienza nel...