Appartamento
Vendita
Vendita Appartamento

Appartamento

Via Settembre, XX, Cervia, Ravenna

340.000 €
60
mq
3
Locali
2
Camere
1
Bagni

Recensisci questo Immobile

Devi essere registrato per lasciare una recensione.

Accedi

Nessuna recensione ancora. Sii il primo!

Descrizione

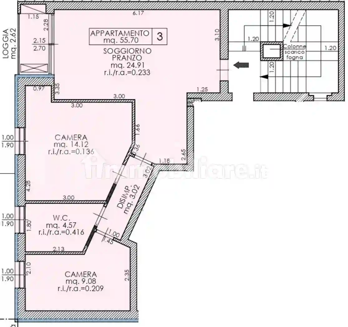
Grimaldi Immobiliare propone in vendita a Cervia un moderno appartamento al piano primo, situato in posizione strategica e vicinissima a tutti i servizi.
L'immobile, caratterizzato da finiture di pregio e massima efficienza, è così composto:
Soggiorno con Angolo Cottura.
Due Camere da letto.
Un Bagno.
Ripostiglio.
Cappotto termico esterno per un isolamento eccellente.
Riscaldamento autonomo e sistema a pavimento.
Porta blindata.
Classe Energetica A4.
Completa la proprietà la possibilità di acquistare una cantina a parte.
Per informazioni e visite:
Grimaldi Immobiliare - Viale Gramsci 33, Milano Marittima
Tel: 0544 1888701 Cell:389 9543151 Cell:3451773811
Email: milano.marittima@grimaldifranchising.it

Caratteristiche

Piano 1
Ascensore No
Stato Ottimo / Ristrutturato
Riscaldamento Autonomo, a pavimento, alimentato a metano

Servizi e accessori

Cancello elettrico Fibra ottica Impianto di allarme Impianto tv con parabola satellitare Infissi esterni in vetro / PVC Porta blindata VideoCitofono

Posizione

Referente

Grimaldi Immobiliare Milano Marittima

Storico

Pubblicato 12 Jan 2026
Aggiornato 18 Feb 2026
Sul mercato 39 giorni
ID Annuncio 125055533

Recensioni

Vedi tutte
B

Bruno Romano

5.0

Ho appena comprato una seconda casa al mare a Cervia e sono davvero felice del risultato. L’agenzia è stata fantastica a seguirmi passo dopo passo, aiutandomi a gestire lo stress della trattativa e ma...

R

Romeo Merlini

4.7

Le mie esperienze precedenti con agenzie immobiliari erano state spesso complicate e poco chiare, ma questa volta è stato diverso. Ho trovato un ufficio perfetto per la mia attività grazie alla dispon...

D

Diego Valente

4.7

Ho trovato un bilocale perfetto a Cervia grazie a un'agenzia molto competente e disponibile, che ha seguito ogni fase con attenzione. La loro flessibilità negli orari e la capacità di negoziazione mi...

A

Alessandro Marchetti

4.7

Stavo cercando un agente affidabile per vendere un locale commerciale a Cervia e sono stato molto fortunato a incontrare questa agenzia. Ho trovato persone attente alle mie esigenze, sempre disponibil...

D

Domenico Aiello

4.7

Stavo cercando un appartamento più grande per la mia famiglia in crescita e devo dire che questa agenzia è stata fantastica. Sono stato molto soddisfatto del supporto che ho ricevuto, hanno saputo asc...