Vendita Appartamento

Appartamento

martiri della liberazione, Pozzuolo Martesana, Milano

Prezzo
100
mq
3
Locali
2
Camere
2
Bagni

Recensisci questo Immobile

Devi essere registrato per lasciare una recensione.

Accedi

Nessuna recensione ancora. Sii il primo!

Descrizione

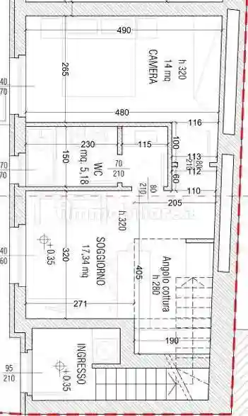
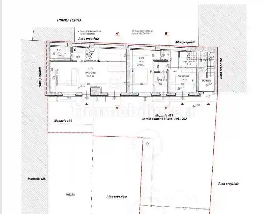
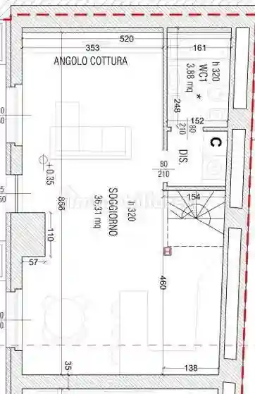
Pozzuolo Martesana nel centro del paese, con tutte le comodità e i servizi a portata di mano vi proponiamo una casa indipendente che fa parte di un fabbricato storico in fase di completa ristrutturazione. La casa si sviluppa su due livelli dove al piano terra abbiamo la zona giorno con
un bel soggiorno grande di 36 mq con cucina a vista, disimpegno e primo bagno . Tramite comoda scala interna si accede alla zona notte che sarà mansardata e dotata di abbaini , abitabile a tutti gli effetti , e troviamo la camera da letto matrimoniale, bagno padronale e la cameretta , le camere da letto godono di buone dimensioni. La parte esterna della casa verrà finemente rifinita con pavimentazione da esterno , cosi come un cortile in comune con altre due abitazioni che fanno parte di questo piccolo cortile ,ogni abitazione avrà un posto auto di proprietà. La classe energetica sarà A e avranno tutte le caratteristiche delle case ad alto risparmio energetico , tra cui : riscaldamento autonomo a pavimento, cappotto termico, serramenti ad alte prestazioni termo-acustiche, impianto di climatizzazione e predisposizione per impianto fotovoltaico, possibilità di scegliere le finiture interne Per ulteriori informazioni e per fissare un'appuntamento chiedere di Luca al tre nove tre cinque tre cinque sei otto sette cinque, massima disponibilità per appuntamenti anche al sabato

Caratteristiche

Piano T
Ascensore No
Stato Nuovo / In costruzione
Riscaldamento Autonomo, alimentato a metano

Servizi e accessori

Infissi esterni in triplo vetro / PVC Porta blindata VideoCitofono

Posizione

Referente

Servizi Immobiliari

Storico

Pubblicato 13 Jan 2026
Aggiornato 27 Feb 2026
Sul mercato 46 giorni
ID Annuncio 125094769

Recensioni

Vedi tutte
M

Michela Sabatini

5.0

Ho trovato l’agenzia molto professionale e affidabile. Mi sono sentita seguita e supportata in ogni fase, anche nella gestione del mutuo. La loro serietà ha reso il mio trasferimento in zona più tranq...

R

Renata Borghi

5.0

Durante il processo di ricerca del mio bilocale, mi sono sentita un po' ansiosa, ma grazie alla competenza e alla pazienza dell'agente tutto è stato più semplice del previsto. Mi sono sentita seguita...

A

Anna Crisci

4.7

Se cercate un’agenzia seria e veloce, questa a Pioltello fa al caso vostro. Mi sono trovata benissimo, sono stata seguita passo passo con grande onestà e rapidità, e alla fine ho trovato il terreno pe...

L

Lisa Ferraro

4.7

Durante tutto il processo mi sono sentita davvero presa per mano e sicura, l’agenzia ha sempre seguito ogni dettaglio con grande cura. Mi sono trovata benissimo, hanno mostrato tanta professionalità e...

M

Marta Bettini

4.3

Apprezzavo molto la puntualità con cui hanno gestito ogni appuntamento, dimostrando grande rispetto del mio tempo. La loro capacità di ascoltare le esigenze dei miei figli e di guidarli nella scelta d...