Villa
Asta
Asta Villa

Villa

Via Zambone, Quistello, Mantova

110.000 €
706
mq
5+
Locali
5
Camere

Recensisci questo Immobile

Devi essere registrato per lasciare una recensione.

Accedi

Nessuna recensione ancora. Sii il primo!

Descrizione

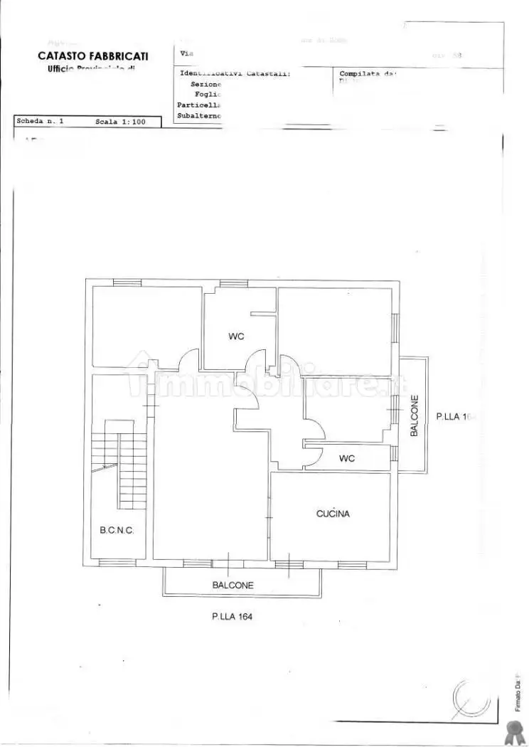
Casa composta al piano terra da ingresso, cucina, soggiorno, tre bagni, lavanderia, disimpegno, doppio ripostiglio e due camere da letto; al piano primo quattro camere da letto due bagni, cabina armadio e ampio ripostiglio; al piano secondo ampia soffitta. Giardino privato e garage.

AstaPro è la tua guida esperta nel mondo degli investimenti immobiliari all'asta, offrendoti un servizio completo e dedicato alla sicurezza e al successo del tuo investimento. Ci specializziamo nel controllo accurato degli immobili messi all'asta, assicurandoci che siano privi di abusi o deformità, al fine di garantire transazioni immobiliari senza sorprese indesiderate.

Il nostro team di professionisti altamente qualificati esegue un'analisi approfondita di ciascuna proprietà, valutando la sua conformità normativa, la presenza di eventuali abusi ed eventuali deformità strutturali. Questo approccio meticoloso ci consente di fornirti informazioni chiare e dettagliate sullo stato dell'immobile, permettendoti di prendere decisioni informate e consapevoli durante il processo di acquisto.

In aggiunta al nostro servizio di controllo delle proprietà, offriamo un supporto completo lungo tutto il percorso di acquisto. Ci occupiamo di tutte le fasi del processo, dalla ricerca delle opportunità all'asta, alla partecipazione e gestione delle trattative, fino alla consulenza legale e finanziaria necessaria per completare la transazione con successo.

AstaPro è più di una semplice azienda di consulenza; siamo il tuo partner fidato che ti accompagna passo dopo passo, garantendo che ogni aspetto del tuo investimento immobiliare all'asta sia gestito in modo professionale e accurato. Con AstaPro, puoi fare investimenti immobiliari in modo sicuro e consapevole, sapendo di avere a tua disposizione un team competente che vela per i tuoi interessi.

Caratteristiche

Piano Piano terra
Ascensore No
Stato Ottimo / Ristrutturato
Riscaldamento Autonomo
Garage 2 in box privato/box in garage, 2 in parcheggio/garage comune

Servizi e accessori

Accesso per disabili Mansarda Cucina Balcone Impianto tv con parabola satellitare Parzialmente arredato Giardino privato Infissi esterni in doppio vetro / legno Esposizione doppia

Posizione

Storico

Pubblicato 03 Jan 2026
Aggiornato 15 Feb 2026
Sul mercato 49 giorni
ID Annuncio 125100403

Recensioni

Vedi tutte
P

Patrizia D'Agostino

5.0

Ho trovato l’agenzia molto professionale e disponibile. Mi hanno seguita passo passo durante tutte le visite e mi hanno aiutata a ottenere il mutuo, rendendo il processo molto più semplice. Sono stata...

L

Laura Valente

4.7

Ciò che mi ha colpito di più è stata la loro attenzione ai dettagli e la disponibilità costante. Mi sono sentita seguita passo dopo passo, con una precisione incredibile nella gestione della documenta...

C

Carlotta Raffaele

4.7

Stavo cercando un appartamento in affitto a Creazzo per trasferirmi per lavoro e sono rimasta davvero colpita dalla professionalità dell'agenzia. Mi hanno seguita passo passo, offrendo trasparenza e r...

S

Stefania Fortunato

4.7

Sono stata davvero soddisfatta del risultato: ho venduto il mio locale commerciale in tempi brevi e senza stress. Mi sono trovata molto bene con l’agente, che è stata sempre puntuale negli appuntament...

C

Caterina Bottaro

5.0

Se state cercando un’agenzia immobiliare affidabile, vi consiglio di sceglierla per la trasparenza e la chiarezza con cui spiegano ogni dettaglio. Mi sono trovata molto bene: sono stata seguita passo...