Asta Villa

Villa

Via Febo e Isacco Arcangeli, Sarnico, Bergamo

Prezzo
Buon Prezzo: 23% sotto la media
292
mq
2
Locali
1
Camere

Recensisci questo Immobile

Devi essere registrato per lasciare una recensione.

Accedi

Nessuna recensione ancora. Sii il primo!

Descrizione

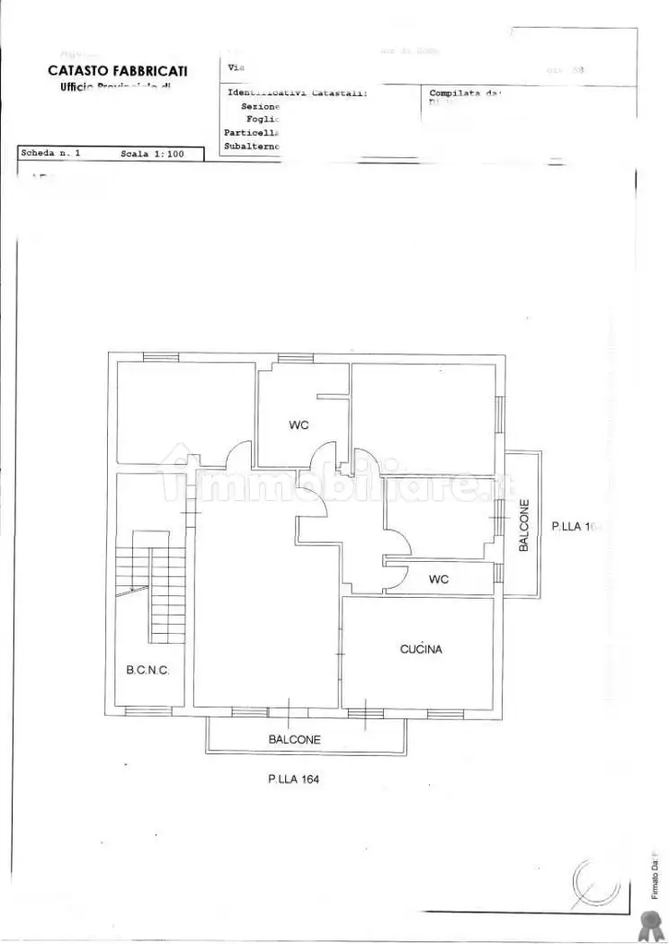
Porzione di bifamiliare disposta su tre livelli con giardino e box di proprietà.

Il seminterrato è destinato agli accessori ovvero: locale tecnico, deposito/taverna, con allacci, e ampia lavanderia/bagno;
il piano terra è destinato alla zona giorno ovvero: cucina/soggiorno in grande ambiente unico, dispensa calda/ripostiglio, disimpegno e bagno;
il piano primo è destinato alla zona notte ovvero: camera padronale con cabina armadio interna, disimpegno, bagno e ripostiglio.

Asta del 11/02/2026

L'immobile viene venduto dal tribunale tramite asta giudiziaria e il prezzo indicato si
riferisce all’offerta minima.

Rivolgendosi al nostro Studio il cliente riceverà assistenza completa e professionale per una perfetta gestione dell'acquisto.

Nello specifico il nostro team si occupa di:

-esposizione del funzionamento d'acquisto tramite asta giudiziaria,

-ricerca sartoriale dell'immobile basata sulle reali esigenze del cliente,

-controlli, analisi pre-asta per valutare nello specifico l’acquisto ed evitare brutte sorprese grazie al supporto tecnico-legale,
-richiesta e prenotazione di visita dell’immobile stesso,

-partecipazione all'asta con supporto personale e accompagnamento del professionista, sia per aste cartacee che per aste telematiche,
-supporto per attivazione firma digitale, e-mail e pec,

-monitoraggio post-asta, rilascio del decreto di trasferimento e assistenza per il saldo prezzo,

-consegna delle chiavi.

È consentita all'acquirente la possibilità di pagamento tramite mutuo bancario e
attualmente in vigore vi sono alcune agevolazioni di cui potremmo usufruire per ottenere
importanti vantaggi, ad esempio l’acquisto come prima casa oppure l’acquisto per soggetti aventi età under 36.

Operiamo con serietà, precisione e accuratezza, nel rispetto delle normative vigenti in
materia e delle novità in continua evoluzione.
Non abbiamo vincoli territoriali e ci occupiamo di qualsiasi immobile in asta in tutta Italia, la digitalizzazione delle vendite delle procedure esecutive ci permette di prestare la nostra assistenza e la nostra competenza anche a distanza, potendo così fornire supporto a chiunque e su qualunque immobile presente sul territorio nazionale.
Siamo presenti sul territorio con tre agenzie:
Romano di Lombardia (BG), Trezzo sull’Adda (MI) e Broni (PV);
ed offriamo la nostra presenza in altrettanti studi di co-working:
Brescia (BS), Vigevano (PV) e Voghera (PV).

Contattaci al numero 0363/568424

oppure tramite mail trezzo@infoasteimmobiliari.it

per avere tutte le informazioni necessarie e per procedere con la valutazione d'acquisto, i nostri consulenti saranno a tua completa disposizione. Chiamaci per poter fissare subito un appuntamento presso una delle nostre sedi.
L’acquisto di una casa all’asta in modo sicuro passa dal nostro servizio esperto e
professionale, affidati ai nostri servizi, ai nostri consulenti e risparmi comprando un
immobile all’asta.
Nel corso degli ultimi anni, l’acquisto di immobili attraverso aste immobiliari si è rivelato il mezzo migliore per ottenere consistenti risparmi rispetto al mercato tradizionale sia per
coloro che intendano acquistare un immobile da adibire ad abitazione principale sia per quanti, in maniera più speculativa, intendano crearsi rendite locative per il proprio futuro o dedicarsi all’attività di compravendita immobiliare.
Ulteriori foto e planimetrie relative all’immobile, se disponibili, saranno consultabili
durante l’appuntamento stesso.
Visita il nostro sito internet www.infoasteimmobiliari.it

Caratteristiche

Piano 3 piani: Interrato (-1), Piano terra, 1°
Ascensore No
Stato Ottimo / Ristrutturato
Riscaldamento Autonomo
Garage 2 in box privato/box in garage

Servizi e accessori

Cancello elettrico Porta blindata Taverna Videocitofono Cucina Terrazzo Impianto tv con parabola satellitare Cantina Giardino privato Infissi esterni in doppio vetro / legno Esposizione doppia

Posizione

Referente

Nicholas Paterni

Storico

Pubblicato 03 Jan 2026
Aggiornato 24 Feb 2026
Sul mercato 56 giorni
ID Annuncio 125159291

Recensioni

Vedi tutte
C

Cecilia Donato

5.0

Ho appena venduto un appartamento di famiglia e sono molto soddisfatta del risultato ottenuto. Sono stata seguita con competenza e pazienza durante tutta la trattativa, il che mi ha dato molta tranqui...

V

Valerio Cataldo

5.0

Grazie di cuore per l'aiuto! Ho trovato il team molto professionale, sempre pronto a rispondere in modo tempestivo e a farmi sentire seguito in ogni fase. Sono stato molto soddisfatto delle valutazion...

V

Valentina Melandri

4.7

Quello che mi ha colpito di più è stata la disponibilità e la capacità di ascolto della squadra, sempre pronta a seguirmi passo passo senza mai pressare. Sono stata davvero contenta della loro profess...

V

Valeria Farina

4.3

Ho trovato il magazzino perfetto per la mia azienda grazie a un’agenzia davvero affidabile e con un’ampia scelta di immobili a Romano di Lombardia. La mia esperienza è stata fantastica: sono stata seg...