Villa
Vendita
Vendita Villa Luxury

Villa

Viale del Lavoro, San Cesareo, Roma

369.000 €
110
mq
4
Locali
3
Camere
2
Bagni

Recensisci questo Immobile

Devi essere registrato per lasciare una recensione.

Accedi

Nessuna recensione ancora. Sii il primo!

Descrizione

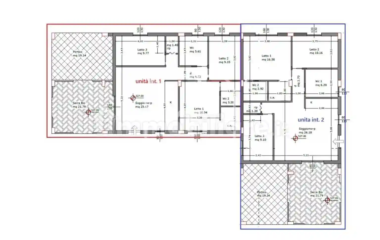
San Cesareo e precisamente in via del Lavoro in posizione assolutamente unica nel suo genere e adiacente a tutti i servizi (scuole, negozi, trasporti), due esclusive porzioni di villa bifamiliare di nuova costruzione con giardini angolari di circa 350mq.
<hr> RM12699 <hr> inzio cantiere marzo 2026 consegna prevista per aprile 2027
Queste proprietà rappresentano il perfetto connubio tra design moderno, efficienza energetica (A4) e comfort abitativo, sviluppandosi interamente su un unico livello per garantire la massima praticità.

Ogni singola porzione sviluppa una superficie interna di 110 mq, sapientemente distribuiti per massimizzare lo spazio e la luminosità ed essere, allo stato attuale, modificati anche in base alle richieste specifiche dei futuri proprietari.
Ogni porzione è suddivisa attualmente da progetto:
• Un ampio e accogliente salone con angolo cottura con accesso diretto sia al porticato di 20mq che alla serra solare bioclimatica di 21 mq ad ampliamento della zona giorno, ambiente conviviale e moderno, ideale per la vita familiare e per ricevere gli ospiti offrendo anche uno spazio perfetto per cene all'aperto e momenti di relax durante la bella stagione.
• Una comoda zona notte composta da una camera matrimoniale, suite esclusiva con annessa cabina armadio e un bagno privato per il massimo della privacy e del comfort, oltre a due comode camerette con spazi luminosi e ben dimensionati, ideali per bambini, ospiti o come studio.
• Un elegante bagno padronale a servizio della zona giorno e delle camerette.
L'attenzione, trattandosi di una nuova costruzione, è rivolta ai massimi standard di qualità, impiantistica e finiture, assicurando un'elevata classe energetica e nello specifico gli immobili saranno dotati di infissi in Pvc doppio vetro, persiane in ferro, pavimento in gres a scelta, predisposizione cancello automatico, impianto di allarme e condizionatori, videocitofono, riscaldamento radiante a pavimento con caldaia a pompa di calore, pannelli fotovoltaici, tetto in legno ventilato ed utenze dirette.

L’inizio lavori è previsto per marzo 2026 mentre la consegna per aprile 2027.

Caratteristiche

Piano T
Ascensore No
Stato Nuovo / In costruzione
Riscaldamento Autonomo, a radiatori, alimentato a gas

Servizi e accessori

Cancello elettrico Esposizione doppia Impianto tv singolo Infissi esterni in doppio vetro / metallo Porta blindata

Posizione

Referente

re servizi 17 s.r.l.

Storico

Pubblicato 12 Jan 2026
Aggiornato 18 Feb 2026
Sul mercato 38 giorni
ID Annuncio 125356489

Recensioni

Vedi tutte
F

Francesco Piazza

4.7

Stavo cercando un investimento immobiliare a Roma e ho deciso di rivolgermi a questa agenzia. Mi hanno seguito passo dopo passo, dimostrando grande competenza nella trattativa e aiutandomi a trovare l...

V

Vittorio De Rosa

4.3

Ricordo ancora il momento in cui ho firmato le carte: finalmente avevo trovato la casa giusta dopo anni di affitti e incertezze. L’agenzia è stata trasparente in ogni fase e mi ha sempre seguito con a...

V

Vito Valente

4.7

Durante il processo mi sono sentito sicuro e ben seguito, grazie alla tempestività nelle risposte e alla chiarezza delle valutazioni. L'agenzia si è dimostrata onesta e professionale, aiutandomi a tro...