Villa
Vendita
Vendita Villa Luxury

Villa

Viale del Lavoro, San Cesareo, Roma

369.000 €
110
mq
4
Locali
3
Camere
2
Bagni

Recensisci questo Immobile

Devi essere registrato per lasciare una recensione.

Accedi

Nessuna recensione ancora. Sii il primo!

Descrizione

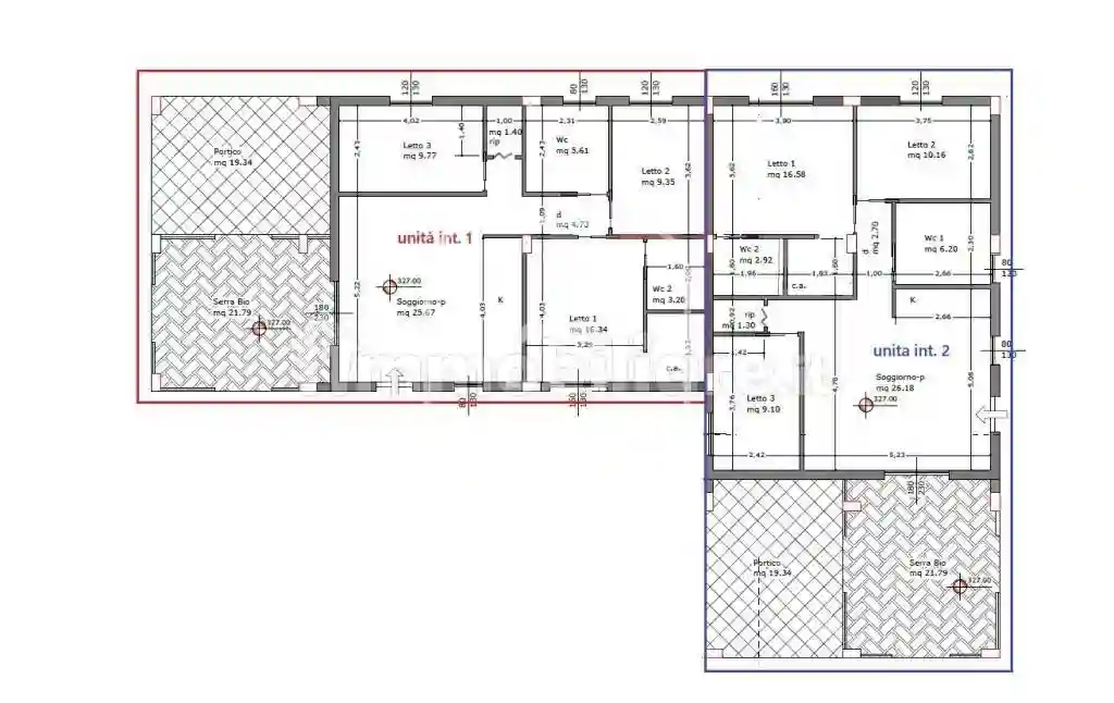
Mediazionecasa propone in vendita, nel cuore pulsante di San Cesareo e precisamente in via del Lavoro in posizione assolutamente unica nel suo genere e adiacente a tutti i servizi (scuole, negozi, trasporti), due esclusive porzioni di villa bifamiliare di nuova costruzione con giardini angolari di circa 350mq. Queste proprietà rappresentano il perfetto connubio tra design moderno, efficienza energetica (A4) e comfort abitativo, sviluppandosi interamente su un unico livello per garantire la massima praticità.

Ogni singola porzione sviluppa una superficie interna di 110 mq, sapientemente distribuiti per massimizzare lo spazio e la luminosità ed essere, allo stato attuale, modificati anche in base alle richieste specifiche dei futuri proprietari.
Ogni porzione è suddivisa attualmente da progetto:
• Un ampio e accogliente salone con angolo cottura con accesso diretto sia al porticato di 20mq che alla serra solare bioclimatica di 21 mq ad ampliamento della zona giorno, ambiente conviviale e moderno, ideale per la vita familiare e per ricevere gli ospiti offrendo anche uno spazio perfetto per cene all'aperto e momenti di relax durante la bella stagione.
• Una comoda zona notte composta da una camera matrimoniale, suite esclusiva con annessa cabina armadio e un bagno privato per il massimo della privacy e del comfort, oltre a due comode camerette con spazi luminosi e ben dimensionati, ideali per bambini, ospiti o come studio.
• Un elegante bagno padronale a servizio della zona giorno e delle camerette.
L'attenzione, trattandosi di una nuova costruzione, è rivolta ai massimi standard di qualità, impiantistica e finiture, assicurando un'elevata classe energetica e nello specifico gli immobili saranno dotati di infissi in Pvc doppio vetro, persiane in ferro, pavimento in gres a scelta, predisposizione cancello automatico, impianto di allarme e condizionatori, videocitofono, riscaldamento radiante a pavimento con caldaia a pompa di calore, pannelli fotovoltaici, tetto in legno ventilato ed utenze dirette.

L’inizio lavori è previsto per marzo 2026 mentre la consegna per aprile 2027.

Caratteristiche

Piano T
Ascensore No
Stato Nuovo / In costruzione
Riscaldamento Autonomo, a pavimento, alimentato a pompa di calore

Servizi e accessori

Caminetto Cancello elettrico Esposizione doppia Fibra ottica Impianto di allarme Impianto tv singolo Infissi esterni in doppio vetro / PVC Porta blindata VideoCitofono

Posizione

Referente

mediazionecasa solution

Storico

Pubblicato 12 Jan 2026
Aggiornato 18 Feb 2026
Sul mercato 40 giorni
ID Annuncio 125398049

Recensioni

Vedi tutte
C

Clara Costa

4.7

Ho appena comprato la mia prima casa e sono molto soddisfatta del supporto ricevuto. La loro assistenza nella fase di mutuo è stata fondamentale e mi hanno seguito passo dopo passo anche dopo l'acquis...

S

Sofia Chiesa

4.0

Se cercate un'agenzia immobiliare affidabile e cordiale, il mio consiglio è di affidarsi a loro! Mi sono trovata davvero bene perché sono state pazienti e sempre disponibili nel seguire ogni passo, ai...

F

Flavia Lecce

4.3

Grazie di cuore per avermi aiutata a trovare il bilocale perfetto! Mi sono sentita seguita con grande attenzione e trasparenza, e la loro flessibilità negli orari ha reso tutto più semplice e senza st...

R

Rossana Marconi

4.7

Durante tutto il processo mi sono sentita davvero coccolata e rassicurata, perché hanno capito subito le mie esigenze e mi hanno seguito con grande attenzione. Sono stata molto soddisfatta della loro...